103㎡三居现代简约风格海尔世纪公馆
发布时间:
2016年12月17日
小区:海尔世纪公馆 面积:103㎡ 户型:三居 风格:现代简约风格
设计说明
这种风格从整体到局部、从空间到室内陈设塑造,精雕细琢,给人一丝不苟的印象。整个空间色彩纯粹,搭配温馨大气。在古典欧式风格的基础上,以简约的线条代替复杂的花纹,采用更为明快清新的颜色,既保留了古典欧式的典雅与豪华,又更适应现代生活的悠闲与舒适。
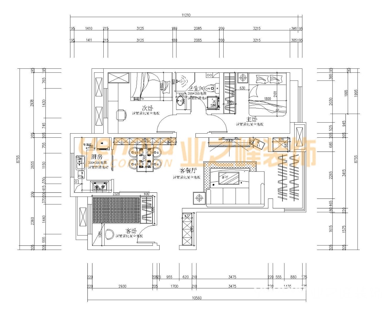
户型图

厨房

书房

客厅


餐厅





京公安网备11010502040911