121㎡三居美式风格中铁国际城
发布时间:
2016年12月16日
小区:中铁国际城 面积:121㎡ 户型:三居 风格:美式风格
设计说明
简美风格,顾名思义是来自于美国简洁的装修和装饰风格。是殖民地风格中最著名的代表风格,某种意义上已经成了殖民地风格的代名词。美国是个移民国家,欧洲各国各民族人民来到美洲殖民地,把各民族各地区的装饰装修和家具风格都带到了美国,同时由于美国地大物博,极大的放开了移民们对尺寸的欲望,使得美式风格以宽大,舒适,杂糅各种风格而著称。
美国是一个崇尚自由的国家,这也造就了其自在、随意的不羁生活方式,没有太多造作的修饰与约束,不经意中也成就了另外一种休闲式的浪漫,而美国的文化又是一个移植文化为主导的脉络,它有着欧罗巴的奢侈与贵气,但又结合了美洲大陆这块水土的不羁,这样结合的结果是剔除了许多羁绊,但又能找寻文化根基的新的怀旧、贵气加大气而又不失自在与随意的风格。
家居自由随意、简洁怀旧、实用舒适;多以暗棕、土黄为主的自然色彩;
美式家居风格的这些元素也正好迎合了时下的文化资产者对生活方式的需求,即:有文化感、有贵气感,还不能缺乏自在感与情调感。
美式风格家居就如同美国独立精神一般,讲究的是如何通过生活经历去累积自己对艺术的启发及对品味的喜好,从中摸索出独一无二的美学空间。
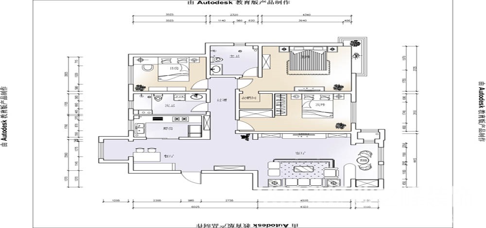
户型图

客厅




餐厅

玄关





京公安网备11010502040911