280㎡别墅美式风格龙湖滟澜海岸
发布时间:
2016年12月16日
小区:龙湖滟澜海岸 面积:280㎡ 户型:别墅 风格:美式风格
设计说明
海归故里后,喜欢上了美式的风格住宅设计,客厅温馨格调,并且与现代时尚电视墙形成了强烈的对比,地下室品酒区与茶室又是另一番生活状态,感觉就像来到了圣彼得堡,进行着快乐的晚餐。
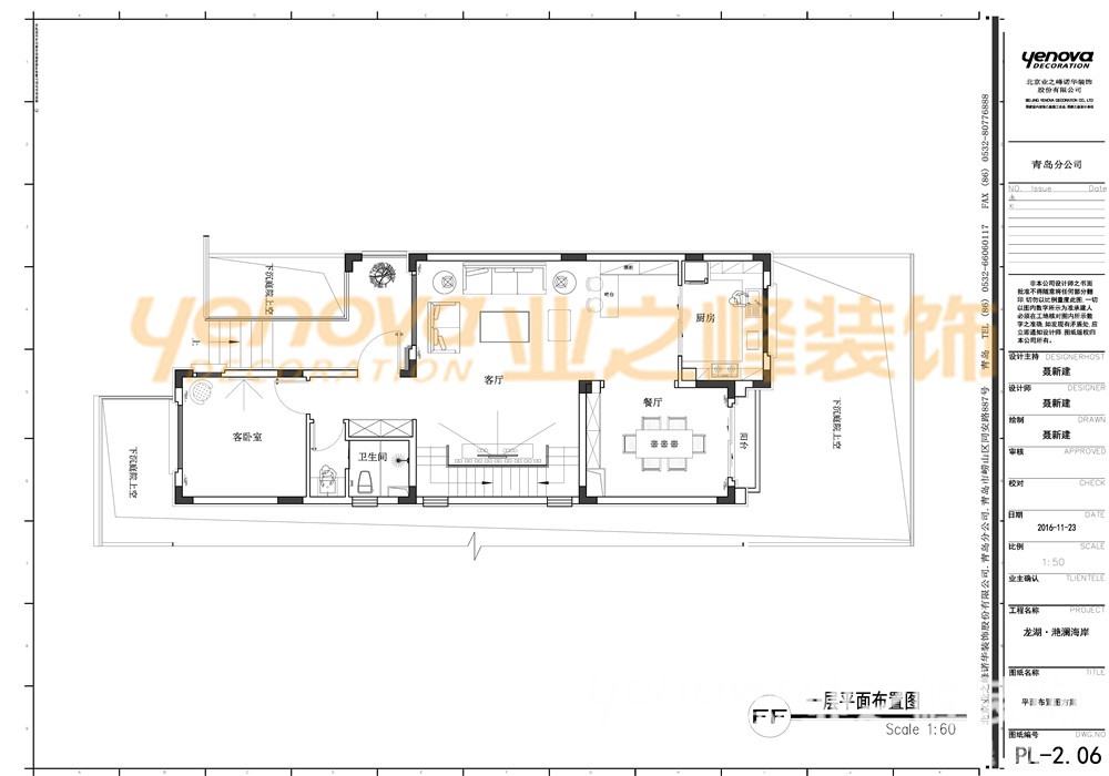
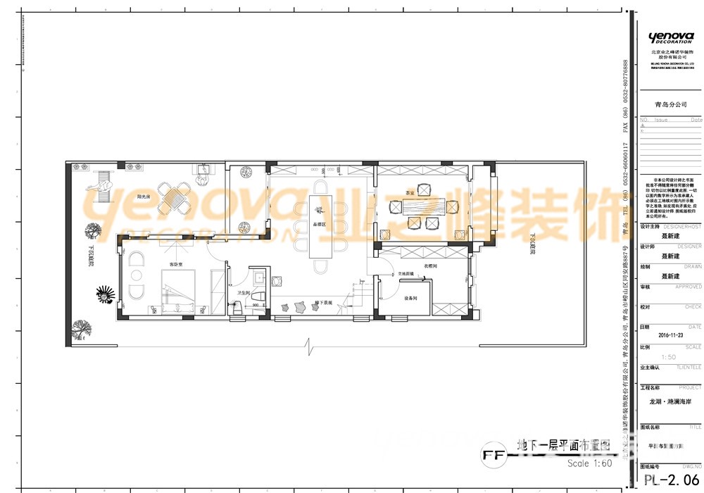
户型图

卧室

儿童房

餐厅


客厅





海归故里后,喜欢上了美式的风格住宅设计,客厅温馨格调,并且与现代时尚电视墙形成了强烈的对比,地下室品酒区与茶室又是另一番生活状态,感觉就像来到了圣彼得堡,进行着快乐的晚餐。









