99㎡二居北欧风格御景新世界
发布时间:
2016年12月14日
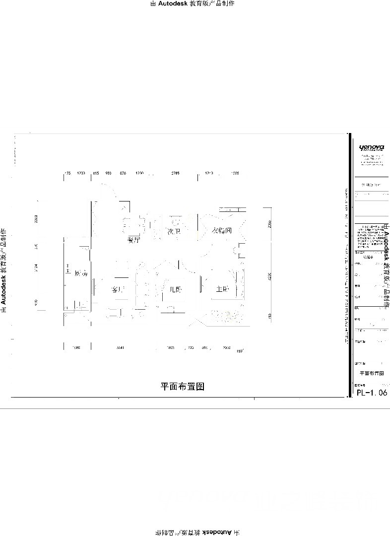
小区:御景新世界 面积:99㎡ 户型:二居 风格:北欧风格
设计说明
业主需求:客户要求在小的空间里三口人生活在简单舒适的环境里。有一个公子在育才上学高中,注重环保、注重收纳空间、注重室内简洁、保留一个卫生间。
设计理念:从空间格局上考虑增加空间,公共空间增加一平米的使用功能。有一个卫生间整合个卫生间,实现客户的对空间的愿望。还有一些电器上位置不合理的改变。
户型图

衣帽间

客厅



餐厅


儿童房

卧室





京公安网备11010502040911