146㎡三居简欧风格恒大华府
发布时间:
2016年12月13日
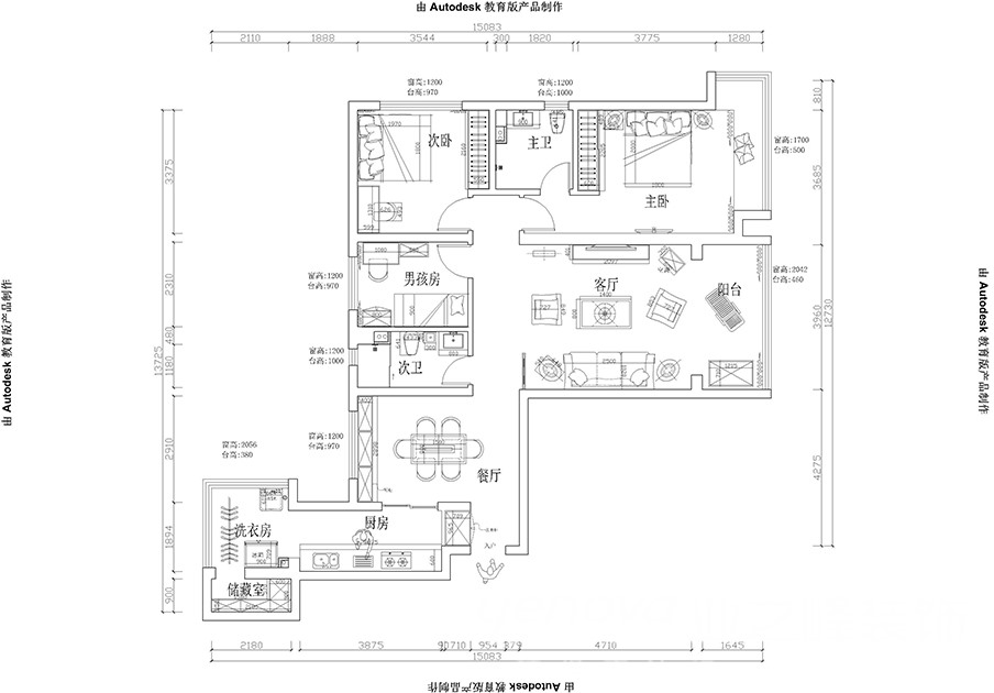
小区:恒大华府 面积:146㎡ 户型:三居 风格:简欧风格
设计说明
此方案的风格倾向定位为简欧风格。营造典雅、自然、高贵的气质、浪漫的情调是本案的主题。装饰画,家具门窗漆为白色,画框的线条部位装饰为线条或金边,在造型设计上既要突出凹凸感,又要有优美的弧线。室内多采用带有图案的壁纸、地毯、窗帘、床罩、帐幔及古典装饰画,体现华丽的风格。以简约的线条代替复杂的花纹,采用更为明快清新的颜色,既保留了古典欧式的典雅与豪华,又更适应现代生活的休闲与舒适。
户型图

客厅





餐厅

玄关

卧室





京公安网备11010502040911