170㎡四居美式风格中海城南一号
发布时间:
2016年11月29日
小区:中海城南一号 面积:170㎡ 户型:四居 风格:美式风格
设计说明
色彩丰富且柔和,这样的设计让人回家就很放松,带来的是美式慵懒生活太度,整体平面布局设计简单而人性化,更好的运用了空间,有效的利用好了每一个角落,软装搭配出彩。
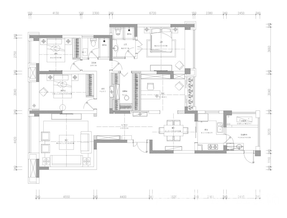
户型图

客厅



卫生间

厨房

色彩丰富且柔和,这样的设计让人回家就很放松,带来的是美式慵懒生活太度,整体平面布局设计简单而人性化,更好的运用了空间,有效的利用好了每一个角落,软装搭配出彩。





