169㎡复式现代简约风格长九中心
发布时间:
2016年11月04日
小区:长九中心 面积:169㎡ 户型:复式 风格:现代简约风格
设计说明
现代风格装饰特点:由曲线和非对称线条构成,如花梗、花蕾、葡萄藤、昆虫翅膀以及自然界各种优美、波状的形体图案等,体现在墙面、栏杆、窗棂和家具等装饰上。线条有的柔美雅致,有的遒劲而富于节奏感,整个立体形式都与有条不紊的、有节奏的曲线融为一体。大量使用铁制构件,将玻璃、瓷砖等新工艺,以及铁艺制品、陶艺制品等综合运用于室内。注意室内外沟通,竭力给室内装饰艺术引入新意。
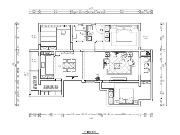
户型图

玄关

客厅




餐厅


书房

卧室






京公安网备11010502040911