150㎡四居简欧风格金辉融侨城
发布时间:
2016年09月11日
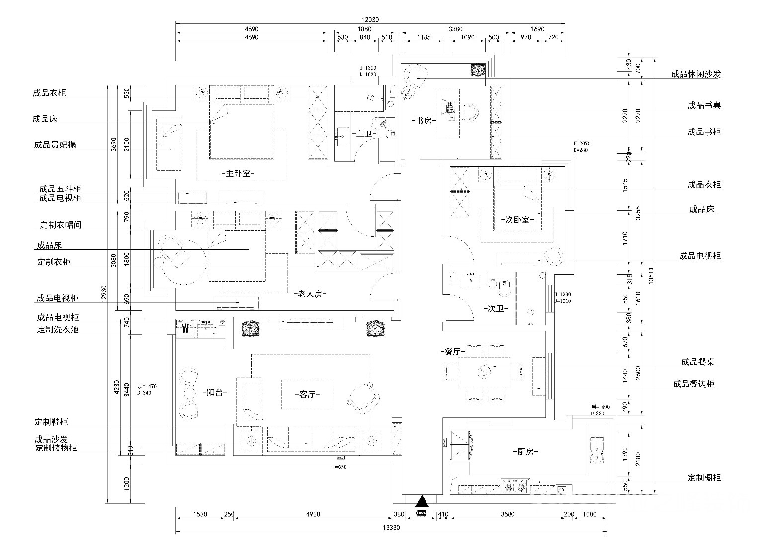
小区:金辉融侨城 面积:150㎡ 户型:四居 风格:简欧风格
设计说明
本方案业主为70后夫妻,女业主需要有衣帽间,男业需要独立书房。经商讨,将方案定为简约欧式风格。电视背景墙运用护墙板和有图案的壁纸设置奢华感觉,电视背景墙上壁灯添加欧式流动性,老人房总体狭长,所以将老人房进行拆改,扩大主卧空间增加衣帽间,将书房设置在光线充足的西房间,保证了整体的通透性和私密性。餐厅采用镜面和大型挂画,增加时尚感。沙发背景墙采用线条和软装,达到舒适感觉。方案主要运用暖色,使空间更加温馨,在材质上运用的比较有质感,比如实木线条,猫脚家具。
户型图

客厅










京公安网备11010502040911