125㎡三居现代简约风格启锐园
发布时间:
2016年09月04日
小区:启锐园 面积:125㎡ 户型:三居 风格:现代简约风格
设计说明
运用简单的线条将空间勾勒出来,大胆的用色与现代的的日新月异发生共鸣,墙面整个留白经典不失干练,留给人遐想的空间,各种配饰四处装点象征一种精致的追求,崇尚简朴而不粗糙。
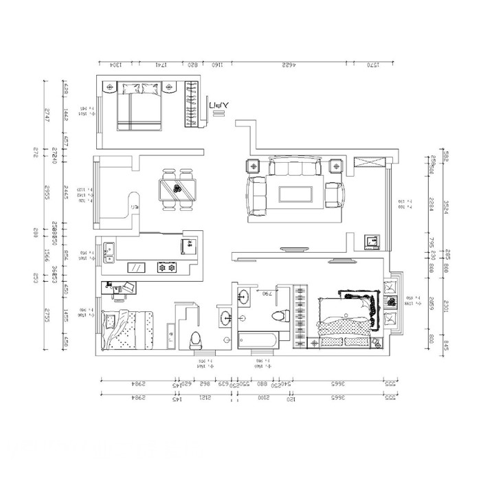
户型图

客厅




餐厅


休闲区

运用简单的线条将空间勾勒出来,大胆的用色与现代的的日新月异发生共鸣,墙面整个留白经典不失干练,留给人遐想的空间,各种配饰四处装点象征一种精致的追求,崇尚简朴而不粗糙。







