138㎡三居北欧风格海天尚东绿洲
发布时间:
2016年09月04日
小区:海天尚东绿洲 面积:138㎡ 户型:三居 风格:北欧风格
设计说明
本套案例整体采用中性色调,稳重,大气,却又不失品味,有令人眼前一亮的感觉。整个空间白色跟灰色搭配很舒服,简单的线条,灰色基调,展现了简约而不简单的风格格调。
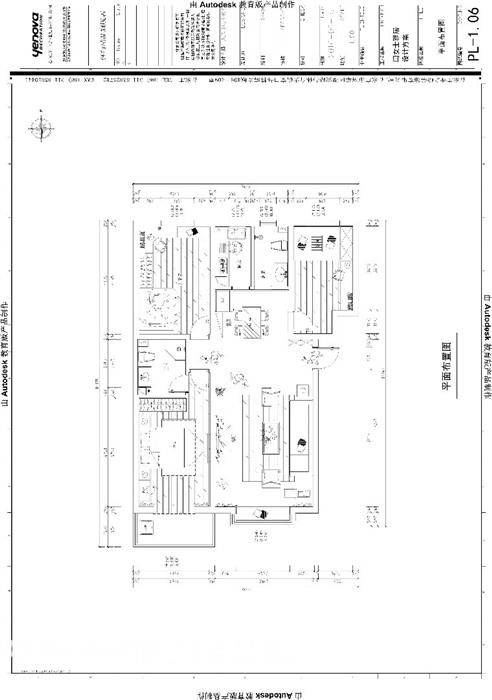
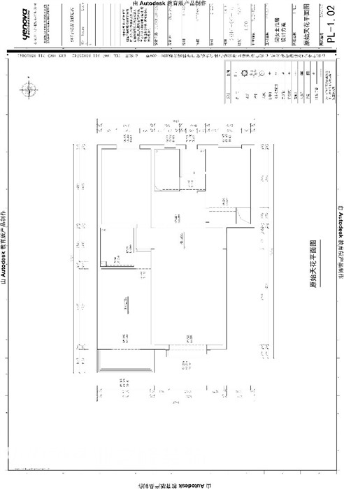
户型图

玄关

客厅






卧室

本套案例整体采用中性色调,稳重,大气,却又不失品味,有令人眼前一亮的感觉。整个空间白色跟灰色搭配很舒服,简单的线条,灰色基调,展现了简约而不简单的风格格调。








