104㎡二居简欧风格启锐园
发布时间:
2016年09月04日
小区:启锐园 面积:104㎡ 户型:二居 风格:简欧风格
设计说明
整体效果以女业主喜欢的北欧为主,设计师经过改造将两居室的户型改造的通透明快,又不失设计感。阳台的墙体经过拆除后用镂空的隔断处理,为阳台增添了些许的情调。客卫的墙体采用玻璃隔断,并且在门厅处增加了储物鞋柜,使得空间敞亮,利用率极高。餐厅的小格调分外惬意,虽然冰箱占据了一丝空间,但是通过卡座的设计,餐厅的空间利用丝毫不减。北欧风格表现的淋漓尽致。
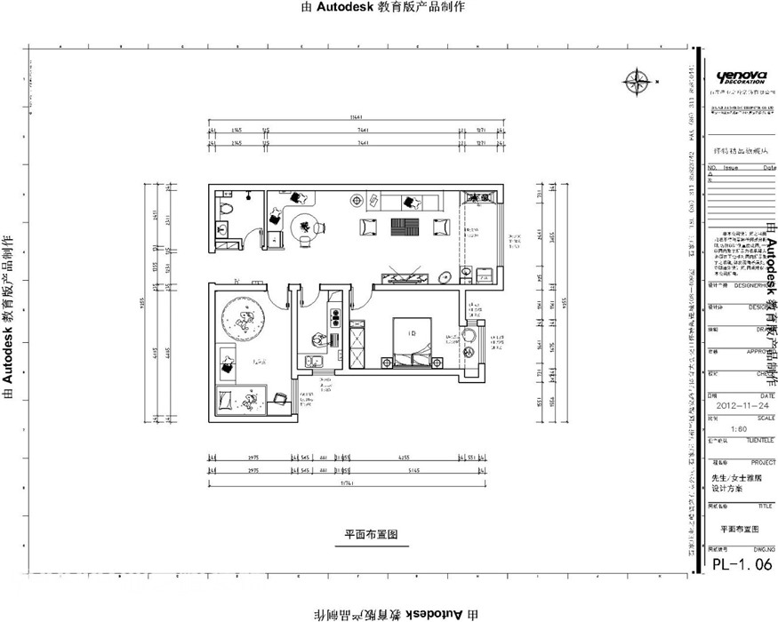
户型图

客厅






餐厅






京公安网备11010502040911