245㎡别墅新古典风格香颂岛
发布时间:
2016年09月01日
小区:香颂岛 面积:245㎡ 户型:别墅 风格:新古典风格
设计说明
本案为外地一楼盘样板间设计。在尽量尊重原始土建结构设计的前提下进行设计。本户型是顶楼跃层,选用更能体现奢侈感的新古典风格。
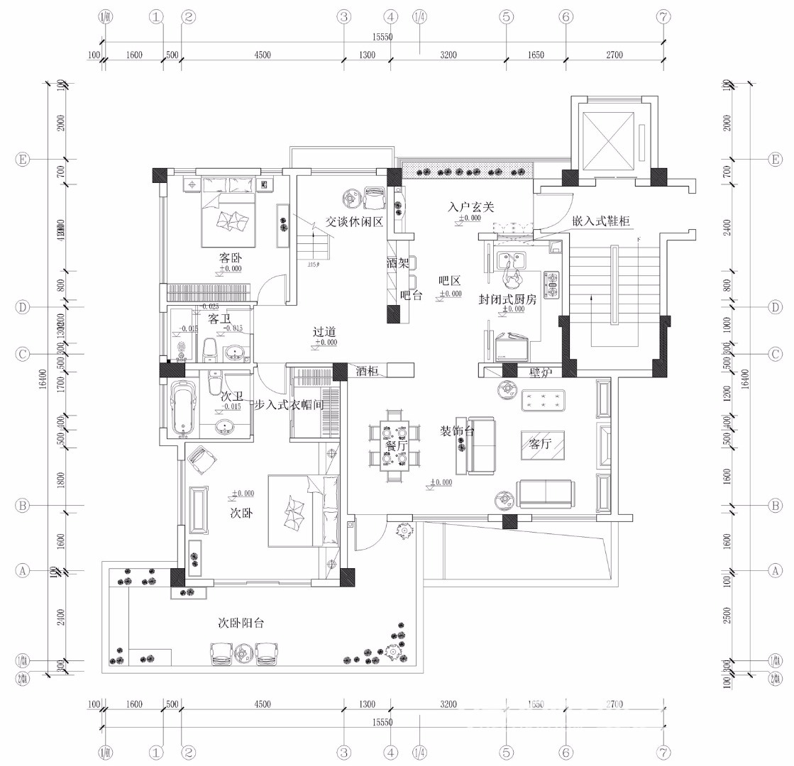
户型图

客厅



卧室


玄关

本案为外地一楼盘样板间设计。在尽量尊重原始土建结构设计的前提下进行设计。本户型是顶楼跃层,选用更能体现奢侈感的新古典风格。






