300㎡别墅美式风格龙湖长桥郡
发布时间:
2016年09月01日
小区:龙湖长桥郡 面积:300㎡ 户型:别墅 风格:美式风格
设计说明
本案为一退休夫妇,儿子过节期间会回来居住。两人向往休闲的乡村生活,所以风格上选用了贴近休闲生活的美式乡村风格。不拘束,不压抑。
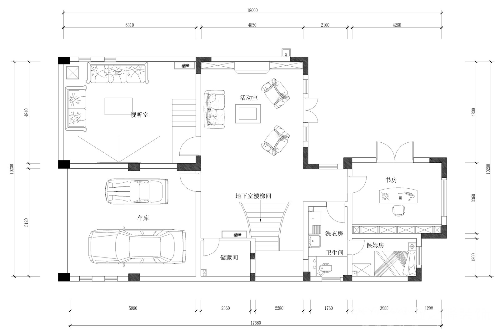
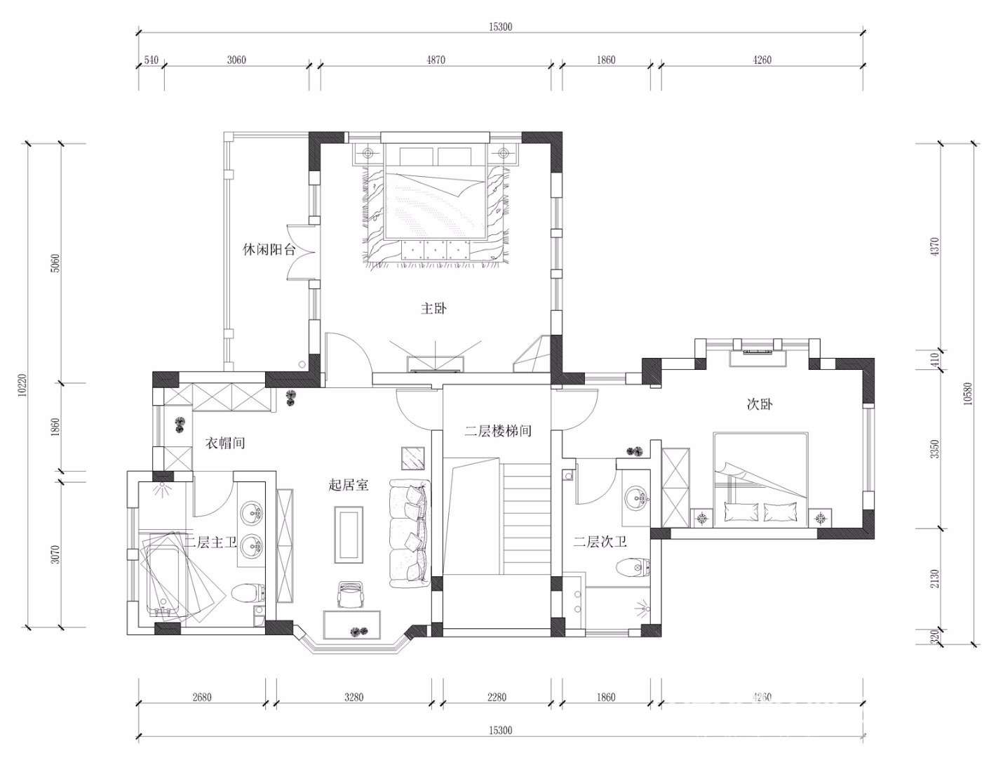
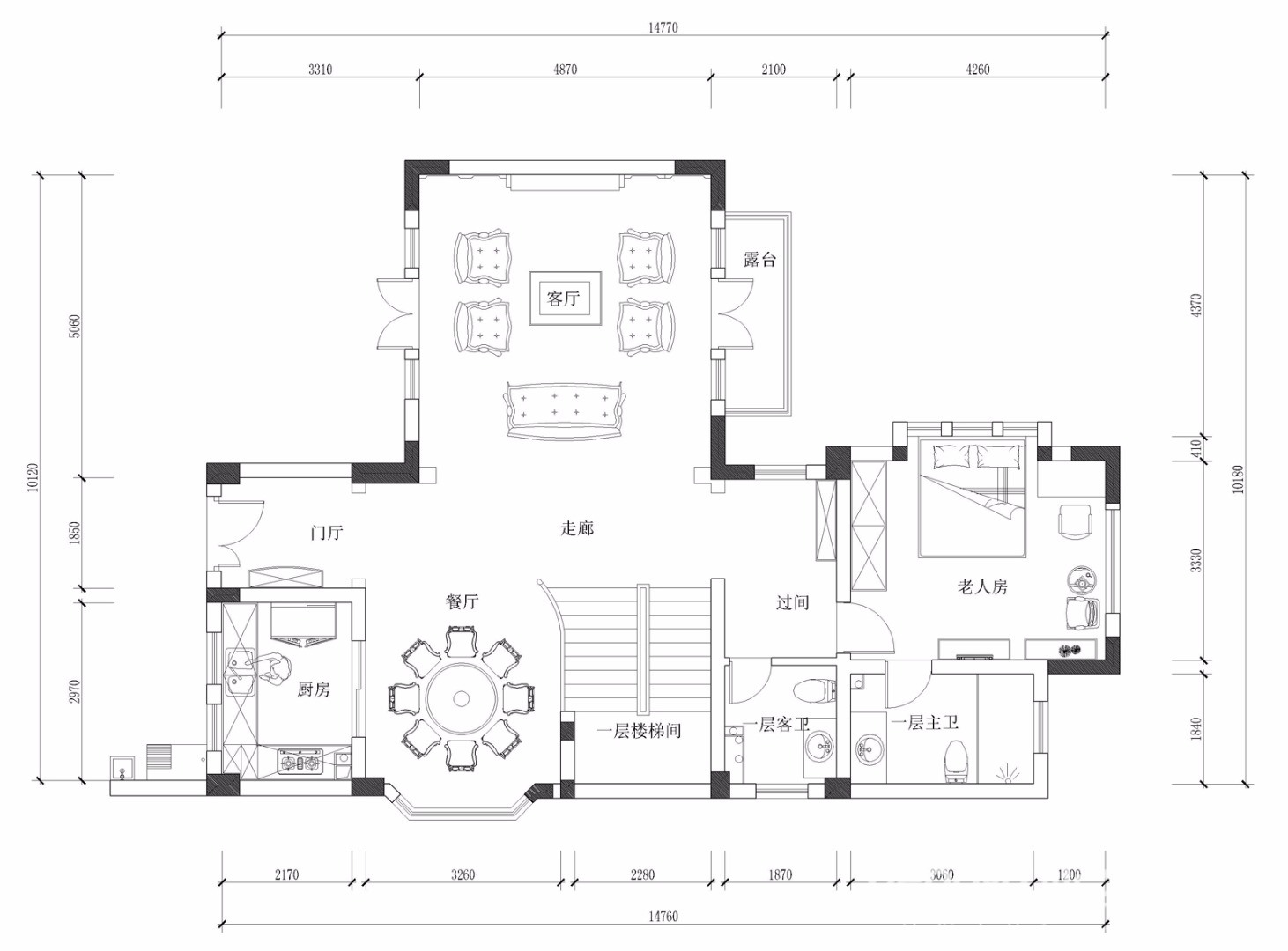
户型图

玄关


卧室


客厅



本案为一退休夫妇,儿子过节期间会回来居住。两人向往休闲的乡村生活,所以风格上选用了贴近休闲生活的美式乡村风格。不拘束,不压抑。







