96㎡三居美式风格金辉世界城
                  发布时间:
                  2016年09月01日
                
 小区:金辉世界城 面积:96㎡ 户型:三居 风格:美式风格
设计说明
 业主风格倾向定位为简约美式,居室中所出现的电器皆为紧跟时代潮流的产品,如等离子电视、环绕立体音响等。本案的设计重点是会客空间与门厅、餐厅以及过道空间互通与交流,从设计手法上采用了从墙面上的线与面的衔接呼应,以及顶面的空间的虚拟划分,达到各功能空间融会贯通的目的。简洁的主义在本案中得到了淋漓尽致的体现。
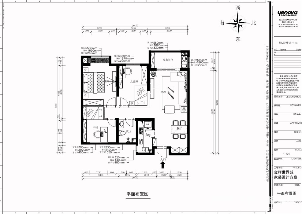
户型图
 
客厅
 


阳台
 
餐厅
 

 


京公安网备11010502040911