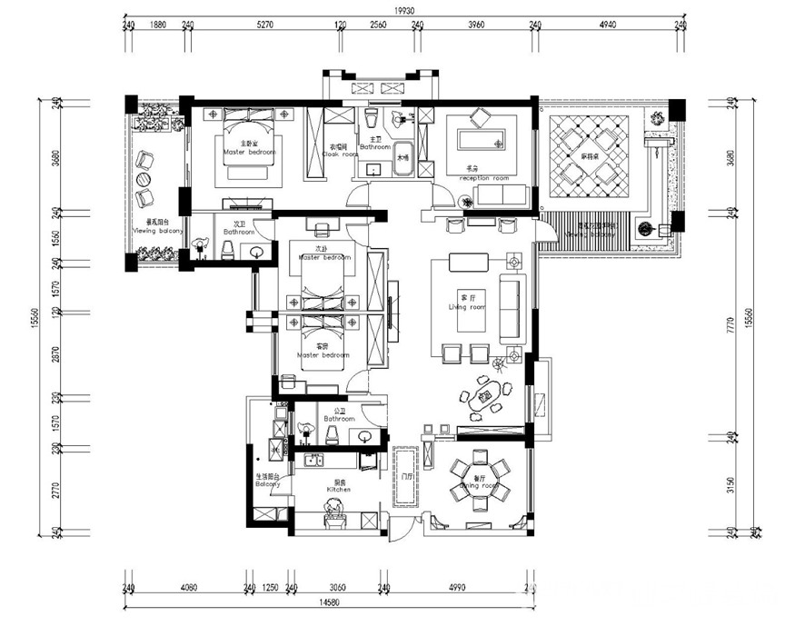
180㎡三居新中式风格南湖国际
发布时间:
2016年09月01日
小区:南湖国际 面积:180㎡ 户型:三居 风格:新中式风格
设计说明
在经典饰品与金属质感衬托下,形成独特空间气质。设计师通过设计手法将中式元素引入其中,创造了宁静的空间。把非凡注入到最为平凡的熟悉的环境——住宅之中,并一次促使人们重新认识平凡。空间陈设去除繁杂留下最精简干练的线条,极尽表现生活中的舒适度和舒适性
客厅









京公安网备11010502040911