283㎡别墅北欧风格雅居乐别墅
发布时间:
2016年08月31日
小区:雅居乐别墅 面积:283㎡ 户型:别墅 风格:北欧风格
设计说明
案例名称:雅居乐十里花巷 王先生府邸
设计说明:
此设计方案的业主是一个事业成功的夫妻;风格倾向定位为北欧风格。现代主义建筑大师Mies Van der Rohe的名言:“Less is more”可以说是简约主义的中心思想。此风格的特色是将设计的元素、色彩、照明、材料简化到最少的程度,空间的架构由精准的比例及细部来显现。虽然色彩及材料都很单一,但色彩的形成非常费工,而使用的材料质感很高,也很昂贵。因此,简约的空间通常非常含蓄,但质感很高。
简约主义体现了一种生活概念,既简单又高贵。实用就好,小而实用。现在流行有玻璃与金属组合的极简约主义设计,更体现出北欧风格的时尚品质。用很少的装饰营造出美的家居环境,简化室内装饰要素,可使人视觉开阔,让空间中的重点之处富有活力。
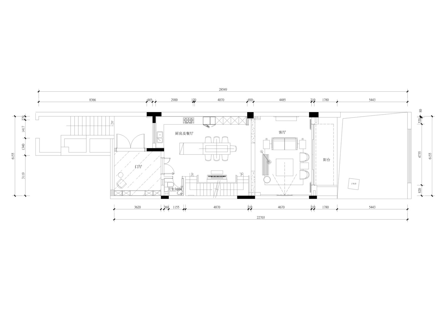
户型图

卧室

书房


客厅





餐厅

儿童房

卫生间





京公安网备11010502040911