235㎡别墅简欧风格碧桂园凤凰城
发布时间:
2016年08月05日
小区:碧桂园凤凰城 面积:235㎡ 户型:别墅 风格:简欧风格
设计说明
现代欧式风格设计从简单到繁杂、从整体到局部,精雕细琢,又摒弃了过于复杂的肌理和装饰,简化了线条。兼容华贵典雅与时尚现代.
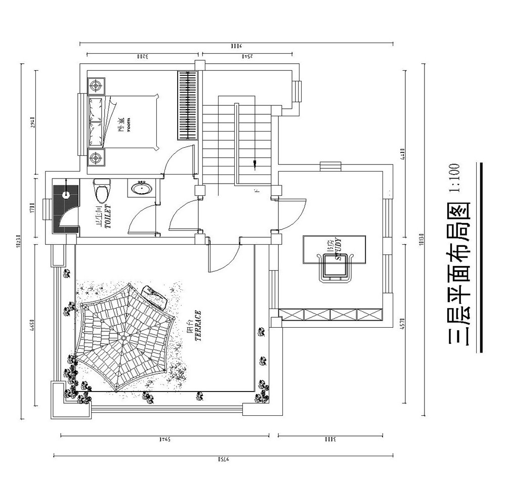
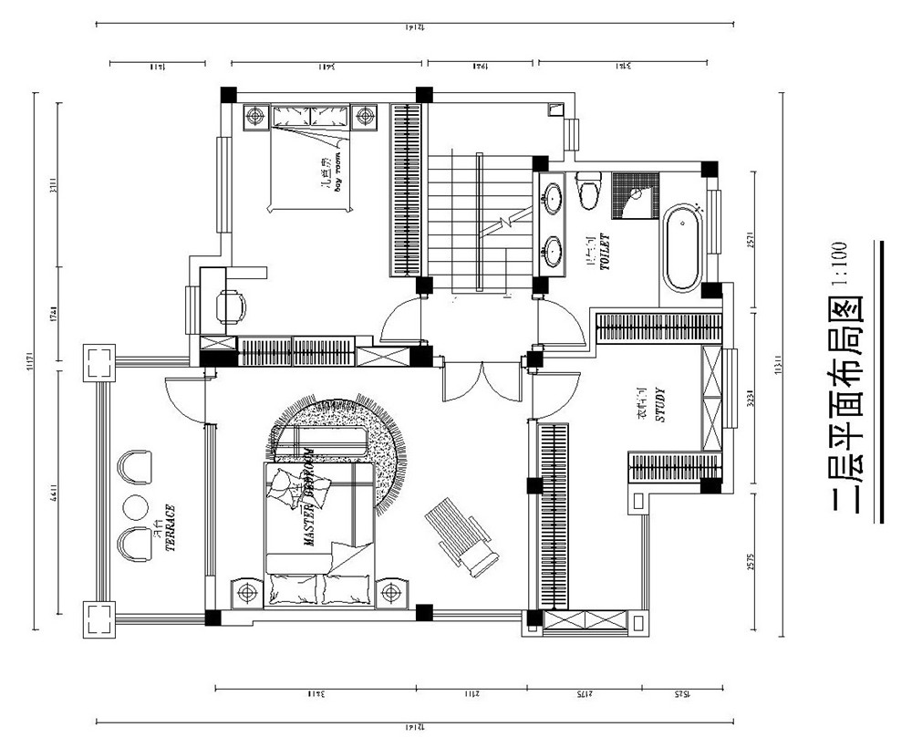
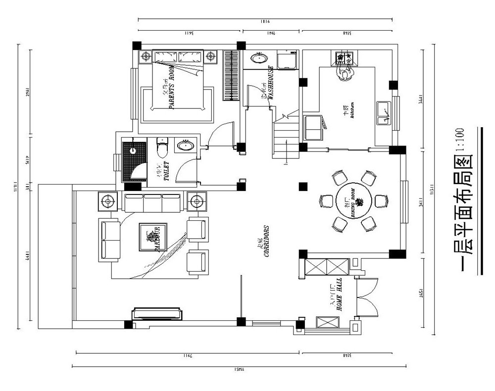
户型图

厨房

客厅







玄关

卧室



书房

现代欧式风格设计从简单到繁杂、从整体到局部,精雕细琢,又摒弃了过于复杂的肌理和装饰,简化了线条。兼容华贵典雅与时尚现代.













