260㎡平层美式风格中海奥龙观邸
发布时间:
2016年08月05日
小区:中海奥龙观邸 面积:260㎡ 户型:平层 风格:美式风格
设计说明
美式乡村风格设计让我们更能体会到乡村的韵味,在整体打造的过程中通过设身体会了乡村的美好感觉后再来塑造此公寓的整体设计。运用了大气而简单的家具来显示出美式乡村风格的美好。优雅尊贵的气质为我们整体韵味带了更多的时尚味道,而空间中的乡村氛围为我们展现出它们对自然的热爱,仿佛无时无刻不在追求着自由自在的感觉.
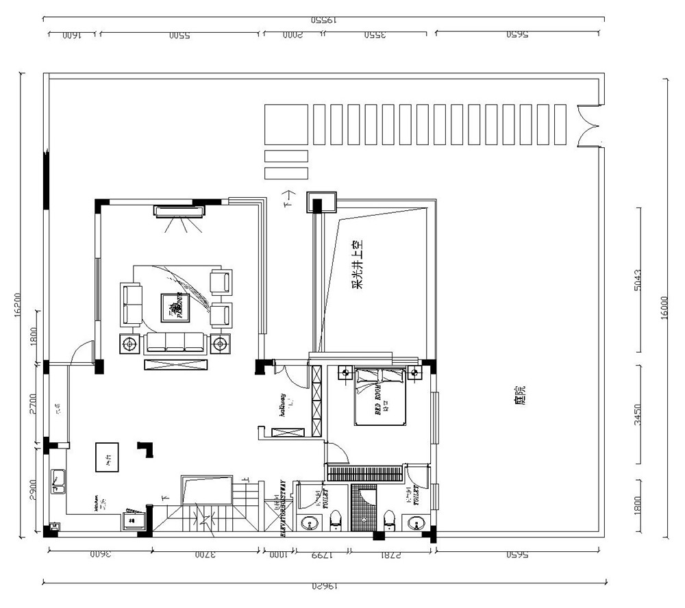
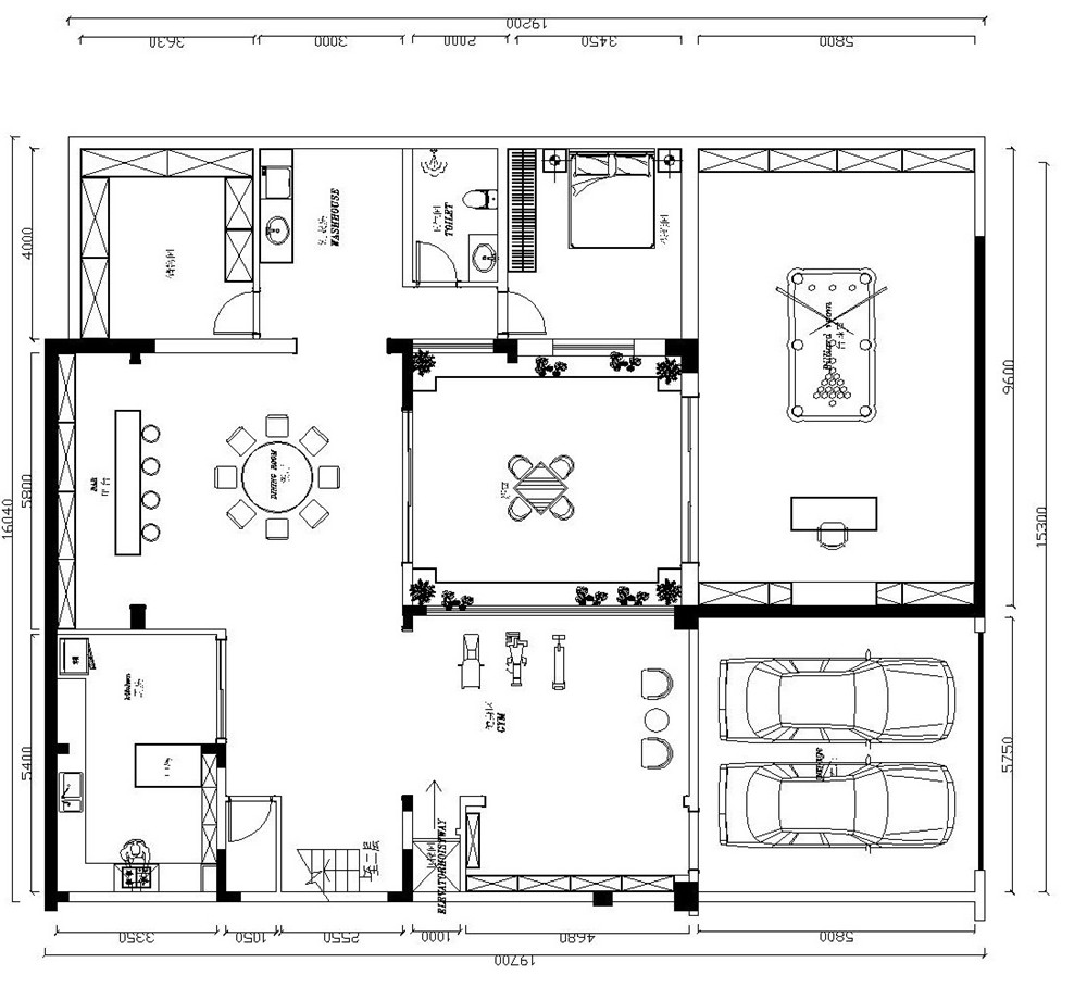
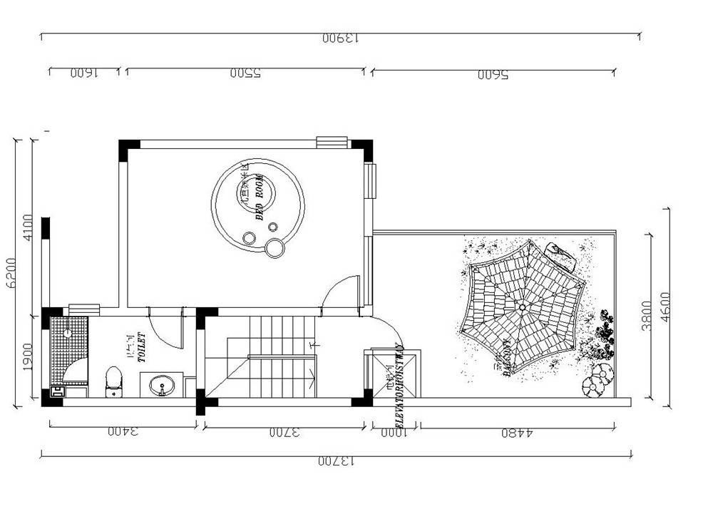
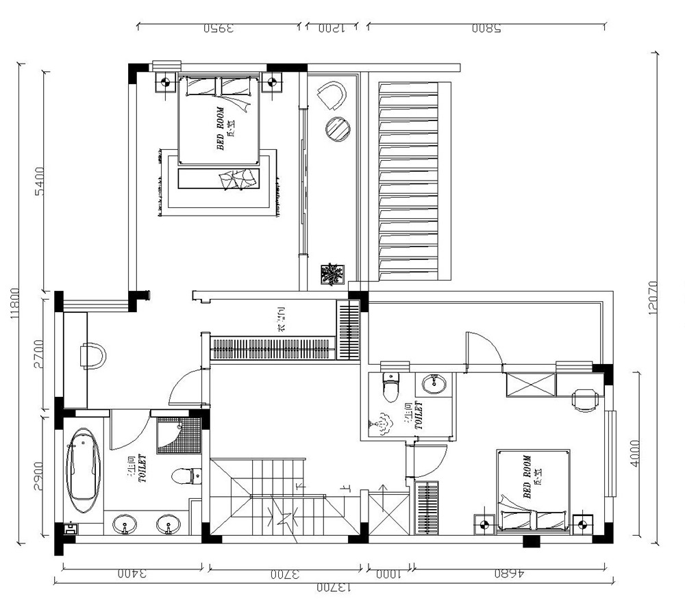
户型图

客厅








玄关

楼梯

卧室


餐厅

卫生间



书房





京公安网备11010502040911