400㎡别墅新中式风格佳兆业现代城
发布时间:
2016年07月21日
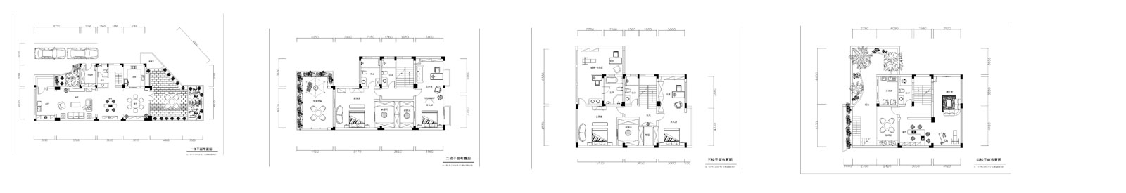
小区:佳兆业现代城 面积:400㎡ 户型:别墅 风格:新中式风格
设计说明
现代人快节奏的生活步调,缺乏一种“停下来”的姿态,本案中的轻古典,摒弃了现代风格现代风格完全简约的呆板和单调,在空间设计,材料,色彩运功,家具装饰品陈设上,对园林古文化的再创造,使之融入空间,古色古香,简约时尚,没有喧嚣与繁冗,一派宁静悠远。
在风格设计元素上也多用了一些现代设计手法,在整体造型设计上多采用简洁的直线设计,局部造型采用了一些中式设计元素,包括后期的家具选择上也会采用一些中式家具,这样来体现一些怀旧的生活方式;根据业主对色彩的趋向,大部分材质采用了冷色调,局部穿插了暖色调的家具和配饰来体现居室温馨的感觉;整体造型设计简洁而大气,作为别墅设计,我个人认为除了整体的设计主调把握好了之后,在细节的设计上更应体现人性化和生活品质。
户型图

客厅


餐厅

卧室

书房





京公安网备11010502040911