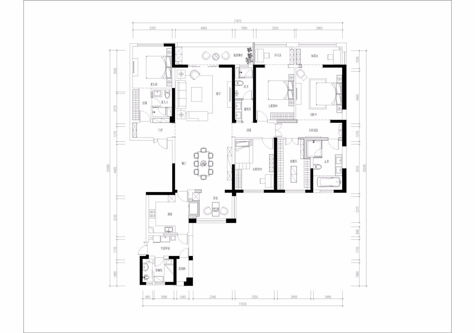
255㎡四居简欧风格中海城南华府
发布时间:
2016年07月20日
小区:中海城南华府 面积:255㎡ 户型:四居 风格:简欧风格
设计说明
每一个家都有不同的生活态度和理念,我们营造出不同的气氛,更深的渗透到业主深层次的需要。本设计采用的是欧式与现代相结合的方式,现代的家具摆设与欧式的线条造型和灰色墙面的基调相结合,凸显出贵气又不浮夸的气质,高贵蓝的在家用品的点缀使整个空间,明亮起来,营造出现代高贵的气氛。
客厅









京公安网备11010502040911