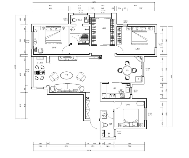
130㎡四居美式风格奥北公元
发布时间:
2016年07月12日
小区:奥北公元 面积:130㎡ 户型:四居 风格:美式风格
设计说明
设计说明:风格定义为简美风格。整个空间的布局合理,整个家装的色调简洁明快,以含蓄的米色白色为主,不需要复杂的结构和线条,而空间丰富的色彩搭配又营造一种温馨,高品质的生活空间
客厅







设计说明:风格定义为简美风格。整个空间的布局合理,整个家装的色调简洁明快,以含蓄的米色白色为主,不需要复杂的结构和线条,而空间丰富的色彩搭配又营造一种温馨,高品质的生活空间






