50㎡一居现代简约风格东胜紫御府
发布时间:
2016年07月10日
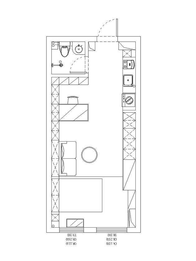
小区:东胜紫御府 面积:50㎡ 户型:一居 风格:现代简约风格
设计说明
本案例定向为现代风格,业主是一位斯文秀气的女士,平时不怎么做饭,一个小小的开放式厨房一张原木餐桌,既美观实用又节省空间;一个面窗书桌和一位安静人,宽敞明亮的榻榻米休闲区,即使来了朋友,也有足够的空间。不需要花哨的装饰品也不需要华丽的灯光氛围,纯粹的三寸日光,拥有自己简单的美好空间。
客厅










京公安网备11010502040911