111㎡三居美式风格保利花园
发布时间:
2016年07月09日
小区:保利花园 面积:111㎡ 户型:三居 风格:美式风格
设计说明
本案设计中采用明亮轻快的蓝色调,给人以大自然的归属感。整体风格表现出怡然自得而舒适惬意的生活情趣。该案用合理的方式将空间进行了明确的划分,加上室内绿植的精心点缀,充分彰显出居住者的品味、爱好和生活价值观。
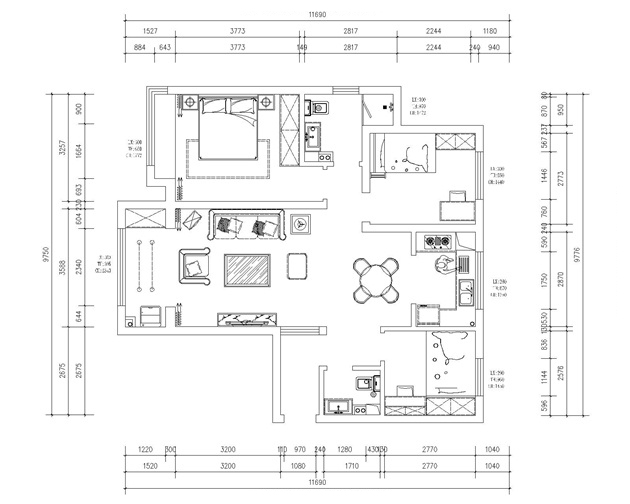
户型图

客厅




卧室

玄关

本案设计中采用明亮轻快的蓝色调,给人以大自然的归属感。整体风格表现出怡然自得而舒适惬意的生活情趣。该案用合理的方式将空间进行了明确的划分,加上室内绿植的精心点缀,充分彰显出居住者的品味、爱好和生活价值观。






