118㎡一居美式风格曲江风景线
                  发布时间:
                  2016年07月07日
                
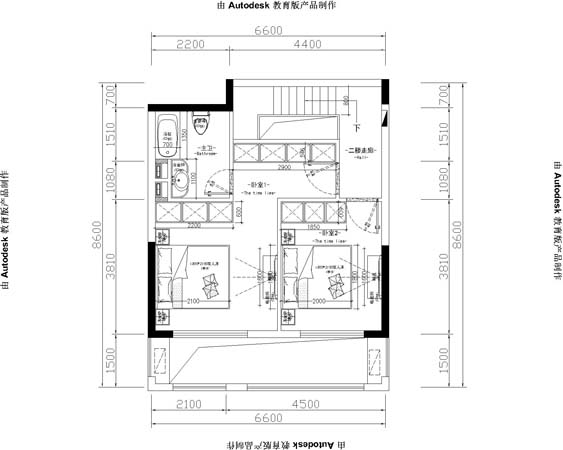
 小区:曲江风景线 面积:118㎡ 户型:一居 风格:美式风格
设计说明
 设计说明 :
本案的设计风格为美式风格,营造典雅、自然、高贵的气质、浪漫的情调是本案的主题。
本案坐落于西安曲江大唐芙蓉园东,业主希望享受一个高品质的生活空间。庄重大气,但又不能太过于深沉。对于业主的要求,设计师进行了仔细的推敲和布局。在对于这个空间的色调上,设计师主要采用棕色的家具和米色壁纸的独特搭配,让空间整体感觉稳重而又不过于浓重,实木的室内家具对于这个简欧风格的家起到了画龙点睛之笔,合理的配色和弧度的门洞瞬间提升了空间的工艺复杂性。
简约、质朴的设计风格是众多人群所喜爱的,生活在繁杂多变的世界里已是烦扰不休,而简单、自然的生活空间却能让人身心舒畅,感到宁静和安逸;藉着室内空间的解构和重组,便可以满足我们对悠然自得的生活的向往和追求,让我们在纷扰的现实生活中找到平衡,缔造出一个令人心弛神往的写意空间。
客厅
 








 


京公安网备11010502040911