153㎡四居新古典风格绿地国际生态城
发布时间:
2016年06月30日
小区:绿地国际生态城 面积:153㎡ 户型:四居 风格:新古典风格
设计说明
项目名称:绿地城
设计单位:北京业之峰装饰有限公司西安分公司
客户情况:本方案针对的是一个四口之家。一对中年夫妇,一个儿子,一个老人。
项目地点:西安
建筑面积:153㎡
设计风格:新古典风格
主要材料:护墙板、壁纸、木地板、PU线条等。
本方案的设计思路是基于在新古典风格的基础上对空间的合理规划。
纵观整个国内高端住宅市场,室内空间表现奢华品质的设计手法仍主要依赖于欧式新古典或与之相关的折衷手法,从设计思维与审美结构上说,这仍然是一种传统习惯。
当大多数人希望客厅越大越好的时候,真正意义上是希望客厅能满足更多的功能需求,它展现的是主人很勇于表达自己对生活美学的态度,因为这间房子是「我」在住的,客人来就必须接受这个空间规画,而不是让居住者去迎合非居住者。 答案是可以的,于是我将客厅规划为多功能厅,客厅固然重要,但不是生活的重心。于是,每个卧室的舒适度也要着重规划,首先有个舒适度高的独立卧室,以及一个独立的卫生间和衣帽间空间,同时还拥有一件独立的书房是最好,如此功能丰富的居室空间才能满足主人高品质的生活需求。本案在对整个户型做出合理设计的同时,在家具配饰的选择和搭配上也是很考究的,呈现出一个高品质居家环境。
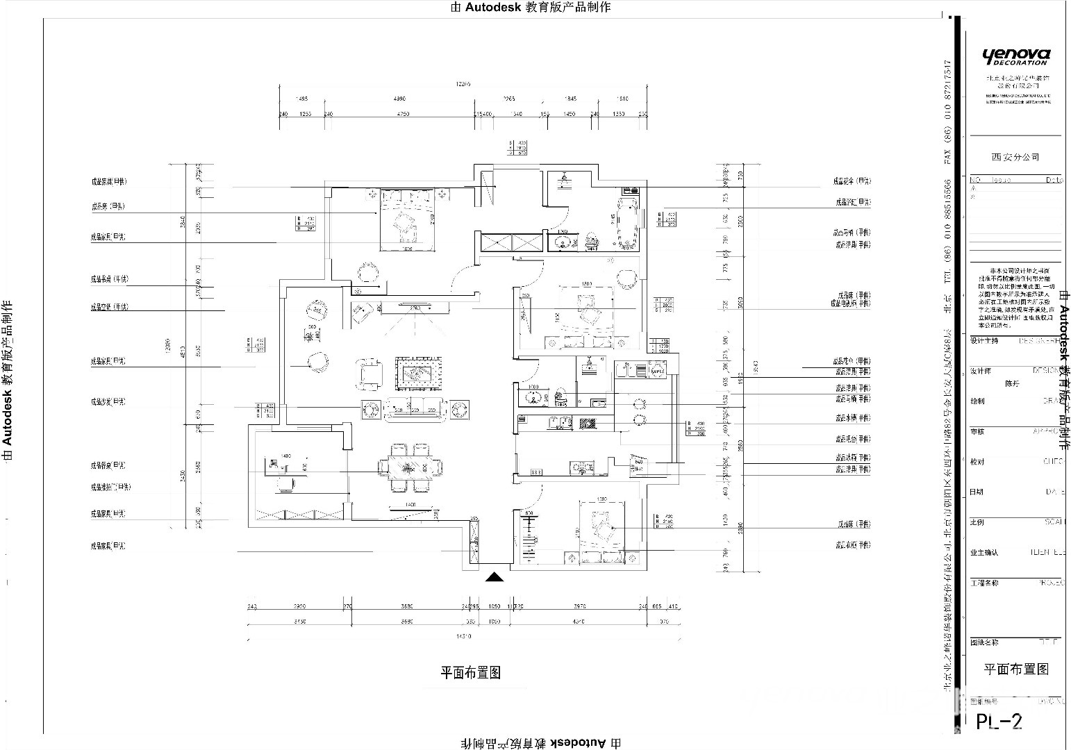
户型图

客厅


卧室

餐厅





京公安网备11010502040911