150㎡三居新中式风格世贸五里河城
发布时间:
2012年02月04日
小区:世贸五里河城 面积:150㎡ 户型:三居 风格:新中式风格
设计说明
本方案的风格应属于中式风格,家具的风格与后期的装饰融为一体,墙面挂画,室内工艺品等都是现代风格的设计元素,客厅,餐厅,走廊的空间交融,是设计的重点,温馨的色彩及木质使房屋增加了舒适情调。
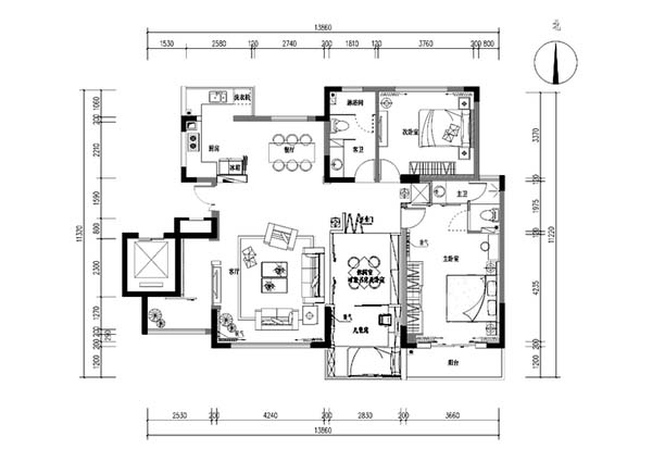
户型图

客厅




餐厅

本方案的风格应属于中式风格,家具的风格与后期的装饰融为一体,墙面挂画,室内工艺品等都是现代风格的设计元素,客厅,餐厅,走廊的空间交融,是设计的重点,温馨的色彩及木质使房屋增加了舒适情调。





