145㎡四居东南亚风格华润·凤凰城
发布时间:
2013年05月16日
小区:华润·凤凰城 面积:145㎡ 户型:四居 风格:东南亚风格
设计说明
雅致主义是带有极强文化品味的装饰风格,它打破了现代主义的造型形式和装饰手法,注重线型的搭配和颜色的协调,反对简单化;讲求模式化,注重文脉,追求人情味,在造型设计的构图理论中吸取其它艺术或自然科学概念,把传统的构件通过重新组合出现在新的情境之中,追求品味与和谐的色彩搭配。
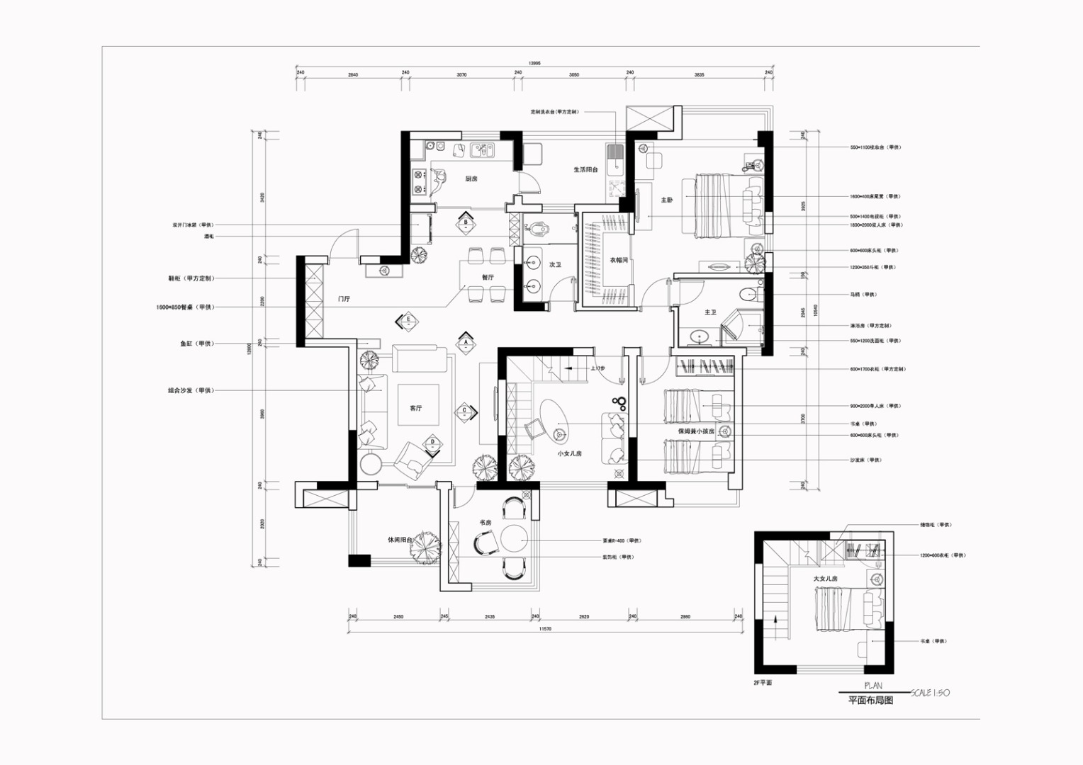
户型图

客厅


餐厅

卧室





京公安网备11010502040911