北京
【切换】
整屋案例
家居美图
实景案例
装修现场
装修攻略
无数据
搜索
010-84934479
扫码快速拨号 >
扫码快速拨号
首页
效果图
设计师
装修现场
装修攻略
品质保障
了解业之峰
当前位置:
首页
装修图库
案例相册
137㎡三居美式风格南湖俊景
发布时间: 2014年06月03日
小区:南湖俊景
面积:137㎡
户型:三居
风格:美式风格
设计说明
如果你想要清新、雅致、娴静舒适的家居环境,那么美式风格装修设计会是一个明智的选择。因为美式风格善用软装设计来点缀室内空间,并与植物相搭,创造出的居住氛围十分解压。
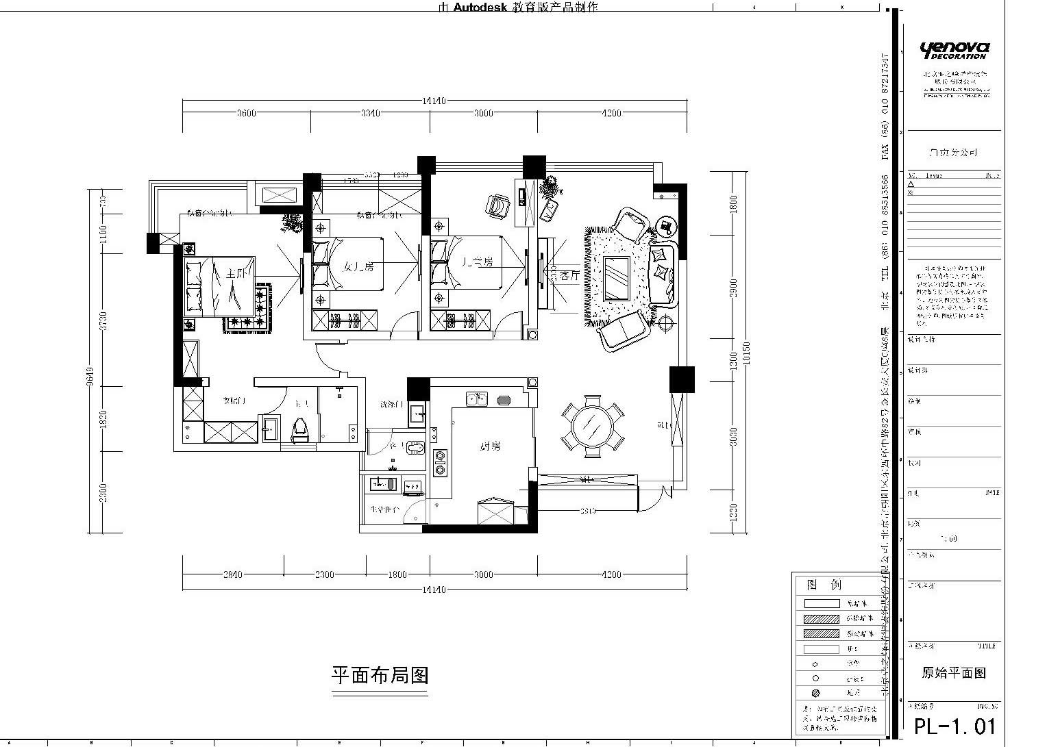
户型图
客厅
卧室
设计说明
户型图
客厅
卧室
本案设计师
程陈
主案设计师
免费咨询
我家装成这样多少钱?
㎡
获取报价
相关案例推荐
120㎡三居美式风格绿城水西云庐
查看详情
113㎡三居美式风格国樾滨江
查看详情
134㎡三居美式风格金融街金悦府
查看详情
143㎡三居美式风格柳岸晓风
查看详情
141㎡三居美式风格雅顺小区
查看详情
152㎡三居美式风格万科水晶城
查看详情
110㎡三居美式风格海天馨苑
查看详情
120㎡三居美式风格鸿运润园
查看详情
132㎡三居美式风格高新·骊山下的院子
查看详情
136㎡三居美式风格维多利亚湾
查看详情
118㎡三居美式风格泰林黄河馨苑
查看详情
130㎡三居美式风格高铁熙悦府
查看详情
110㎡三居美式风格景泰翰林
查看详情
110㎡三居美式风格锦绣江城
查看详情
170㎡三居美式风格建投熙湖
查看详情
120㎡三居美式风格运福苑
查看详情
138㎡三居美式风格府上
查看详情
180㎡三居美式风格他山花园
查看详情
156㎡三居美式风格至诚·枫叶国际
查看详情
156㎡三居美式风格金科集美天悦
查看详情
展开
报价计算器
免费量房
免费设计
回到顶部