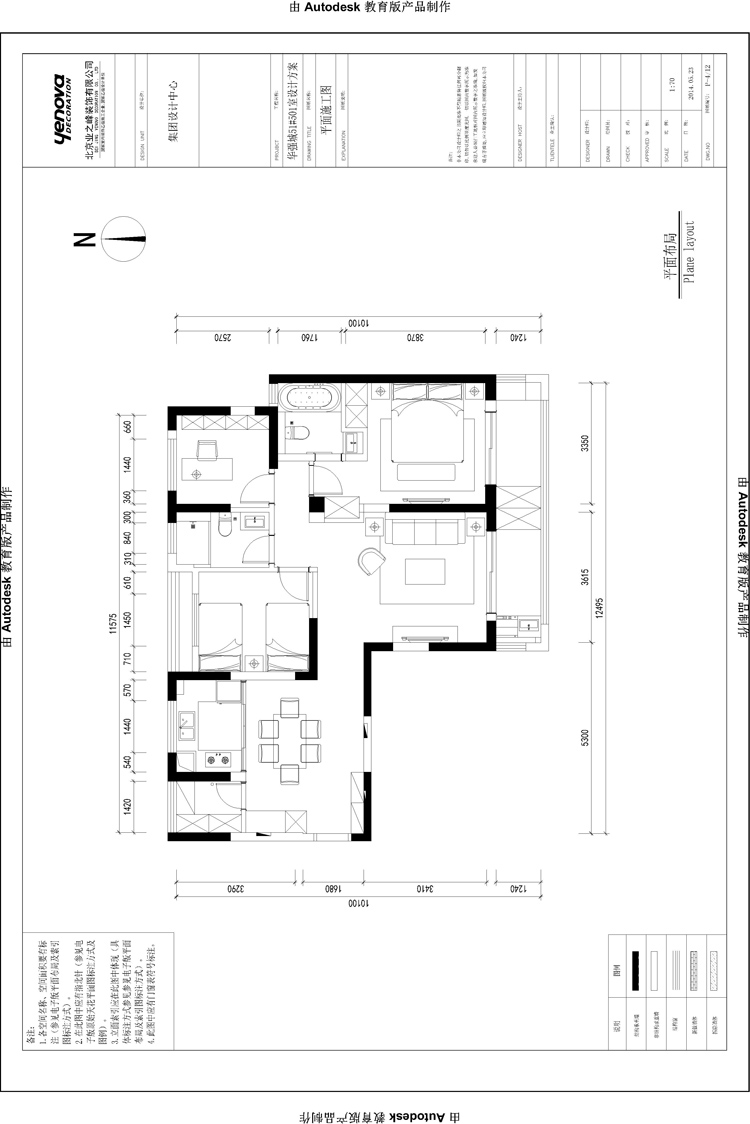
103㎡三居现代简约风格华强城
发布时间:
2014年06月12日
小区:华强城 面积:103㎡ 户型:三居 风格:现代简约风格
设计说明
设计说明:此案例为现代简约风格,摒弃了墙面及顶面的装饰造型的手法,借以家具的感觉来烘托整体设计效果,白色的墙面配上板式木质家具及装饰的搭配,使整个空间更加富有现代简约的味道,追求简约清爽又不失现代时尚之感在本案立面得到了体现。
客厅



餐厅

设计说明:此案例为现代简约风格,摒弃了墙面及顶面的装饰造型的手法,借以家具的感觉来烘托整体设计效果,白色的墙面配上板式木质家具及装饰的搭配,使整个空间更加富有现代简约的味道,追求简约清爽又不失现代时尚之感在本案立面得到了体现。



