139㎡三居美式风格中铁国际城
发布时间:
2014年08月12日
小区:中铁国际城 面积:139㎡ 户型:三居 风格:美式风格
设计说明
本案是幸福的一家三口,男主人成熟稳重,女主人优雅大方,有个16岁的很有主见的帅哥儿子,经过几次沟通,喜欢实木的质感,又不喜欢红木家具的深沉与呆板,最终决定选用欧式深色实木,美式风格。
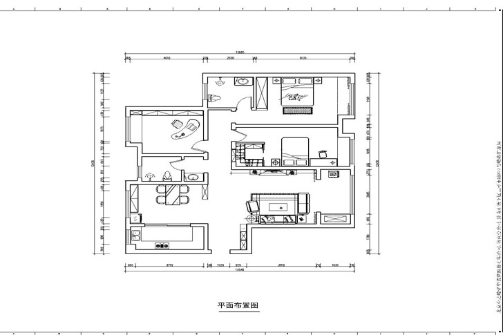
户型图

客厅



卧室


书房

玄关

餐厅

本案是幸福的一家三口,男主人成熟稳重,女主人优雅大方,有个16岁的很有主见的帅哥儿子,经过几次沟通,喜欢实木的质感,又不喜欢红木家具的深沉与呆板,最终决定选用欧式深色实木,美式风格。








