100㎡二居其他爱丽家园
发布时间:
2014年09月15日
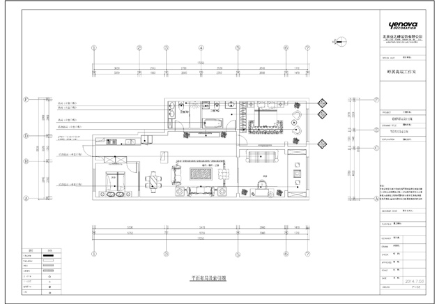
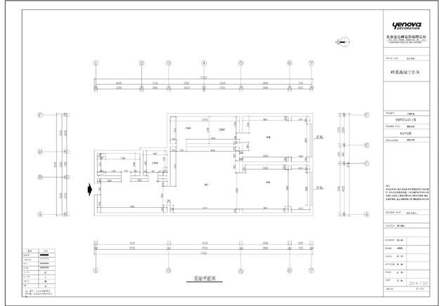
小区:爱丽家园 面积:100㎡ 户型:二居 风格:其他
设计说明
本案融合了庄重与优雅双重气质。总体布局对称均衡,端正稳健,而在装饰细节上崇尚自然情趣,花鸟、鱼虫等精雕细琢,富于变化,充分体现出中国传统美学精神。中式风格的客厅具有内蕴的风格,为了舒服,中式的环境中也常常用到沙发,但颜色仍然体现着中式的古朴,中式这样表现使整体空间,传统中透着现代,现代中揉着古典。这样就以一种东方人的‘留白’美学观念控制的节奏,显出大家风范,其墙壁上的字画无论数量还是内容都不在多,而在于它所营造的意境。
书房

卧室

客厅










京公安网备11010502040911