120㎡二居新中式风格中海凯旋门
发布时间:
2014年09月25日
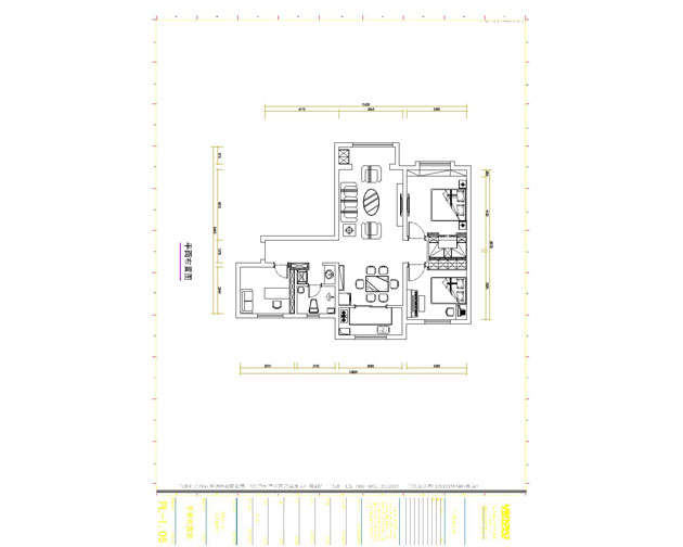
小区:中海凯旋门 面积:120㎡ 户型:二居 风格:新中式风格
设计说明
中国文化风靡全球的现今时代,中式元素与现代材质的巧妙兼柔,明清家具,窗棂布艺床品相互辉映,再现了移步变景的精妙小品。继承明清时期家居理念的精华,将其中的经典元素提炼并加以丰富,同时改变原有空间布局中等级,尊卑等封建思想,给传统家居文化注入了新的气息。中国风并非完全意义上的复古明清,而是通过中式风格的特征,表达对清雅含蓄、端庄丰华的东方式精神境界的追求。室内陈设包括字画、匾幅、挂屏、盆景、瓷器、古玩、屏风、博古架等
户型图

客厅




玄关

餐厅





京公安网备11010502040911