160㎡三居新古典风格府东公园
发布时间:
2014年09月27日
小区:府东公园 面积:160㎡ 户型:三居 风格:新古典风格
设计说明
本案是一个简欧式样板间,通过增加门厅造型、罗马柱的修饰,形成一个独立的空间,其它区域,格局没有改动,通过顶面、地面及后期的配饰来完善.
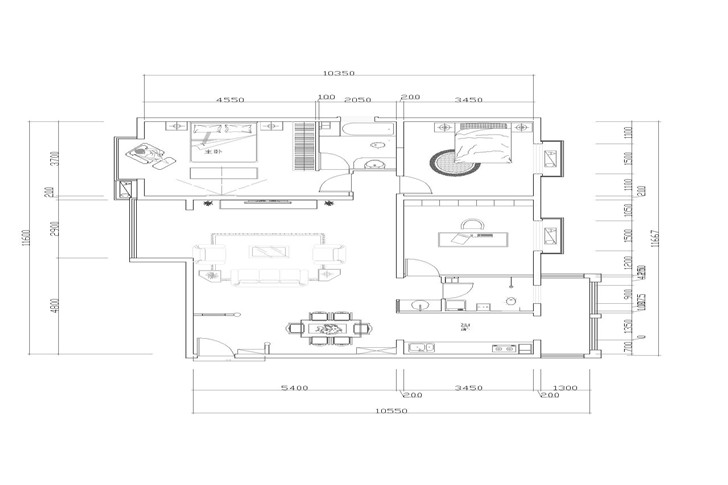
户型图

客厅






卧室

本案是一个简欧式样板间,通过增加门厅造型、罗马柱的修饰,形成一个独立的空间,其它区域,格局没有改动,通过顶面、地面及后期的配饰来完善.







