131㎡三居新古典风格鑫源山庄
发布时间:
2014年09月28日
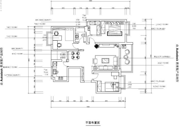
小区:鑫源山庄 面积:131㎡ 户型:三居 风格:新古典风格
设计说明
此设计方案的业主是一对年轻夫妇;风格倾向定位为现代风格。本案的设计重点是会客空间与门厅、餐厅以及过道空间区域划分,从设计手法上采用了从墙面上的线与面的衔接呼应,以及顶面的空间的虚拟划分,达到各功能空间融会贯通的目的。简洁、现代的极少主义在本案中得到了淋漓尽致的体现。
客厅









卧室

儿童房


餐厅






京公安网备11010502040911