148㎡四居其他世茂御珑墅
发布时间:
2014年10月15日
小区:世茂御珑墅 面积:148㎡ 户型:四居 风格:其他
设计说明
设计思路:以白色米黄点缀的设计
标题描述:简欧
本次设计风格定位为简欧风格,整个空间以白色为主体色,
平稳放松。本次设计的重点是空间的布局划分和软装饰品色彩的搭配,重新
规划后的客餐厅都更为通透大气。
使用材料:辅材:都芳水性漆 欧松板 奥松板,轻钢龙骨
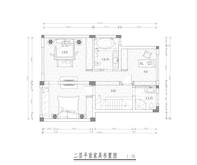
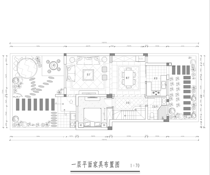
客厅




卧室






京公安网备11010502040911