240㎡复式现代简约风格华安庭岸风景
发布时间:
2014年11月04日
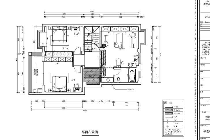
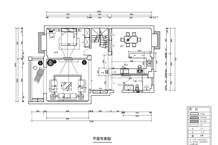
小区:华安庭岸风景 面积:240㎡ 户型:复式 风格:现代简约风格
设计说明
此设计方案的业主是年轻有为的私营老板;风格倾向定位为现代奢华,居室中所出现的材料皆为紧跟时代潮流的产品。本案的设计重点是会客空间与门厅、餐厅以及过道空间互通与交流,从设计手法上采用了从拱门与墙面材质的衔接呼应,以及顶面与地面的空间的虚拟划分,达到各功能空间融会贯通的目的。采用仿古砖与百叶的衬托简洁、舒适的田园氛围在本案得到了淋漓尽致的体现。
客厅












卫生间



楼梯

餐厅






京公安网备11010502040911