380㎡别墅现代简约风格寿光怡景花园
发布时间:
2014年11月05日
小区:寿光怡景花园 面积:380㎡ 户型:别墅 风格:现代简约风格
设计说明
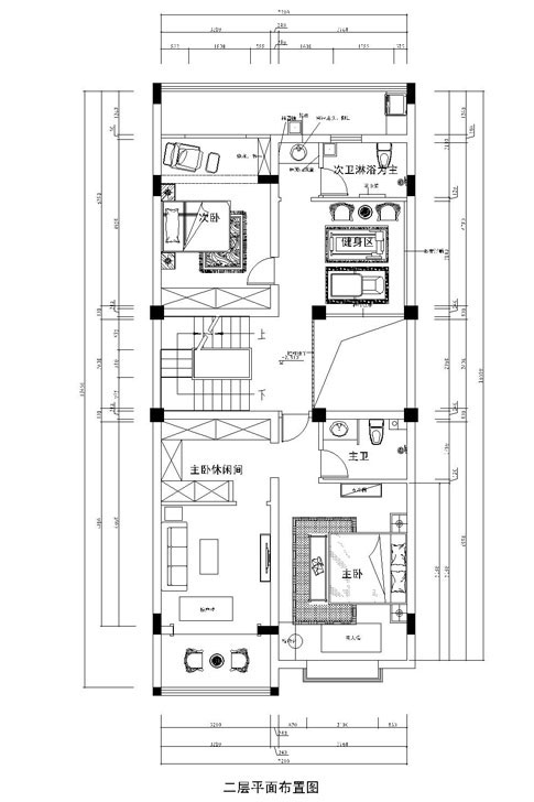
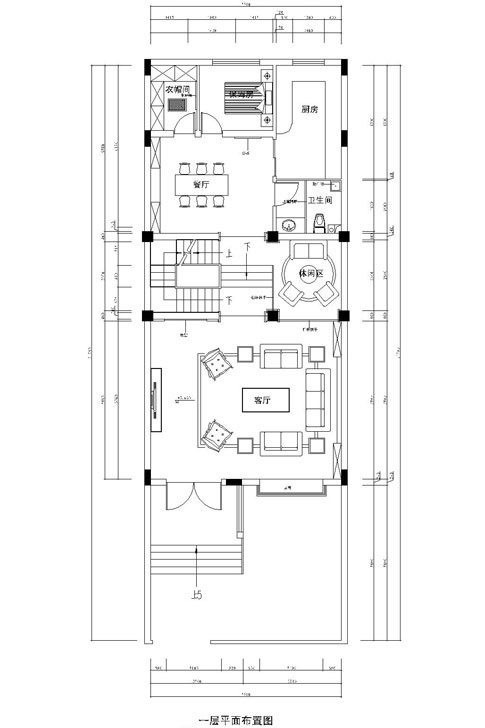
本案所呈现的现代奢华风格注重居室空间的合理分配,使空间得到最大化的利用,根据房子本身的内部结构,设计师进行了大胆地改造,使功能更加合理,满足一家人的生活需求。同时又将欧式元素融入其中,通过空间的划分,新材料及特殊工艺的运用彰显了浓烈而又真挚,高雅而又含蓄的感觉。
客厅















书房

餐厅





京公安网备11010502040911