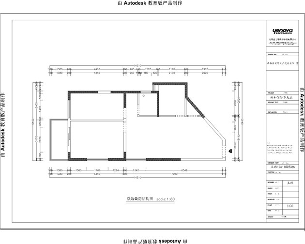
96㎡四居新古典风格郑和国际广场
发布时间:
2014年11月06日
小区:郑和国际广场 面积:96㎡ 户型:四居 风格:新古典风格
设计说明
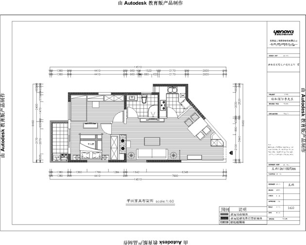
本案设计以优雅灰色为基调,诠释了一个现代,简约而不简单的家!为了满足全面的功能需求,厨房和餐厅有稍微的改动,配以后的家居,把台式的风格演绎的淋漓尽致!
客厅



卧室

卫生间

餐厅

本案设计以优雅灰色为基调,诠释了一个现代,简约而不简单的家!为了满足全面的功能需求,厨房和餐厅有稍微的改动,配以后的家居,把台式的风格演绎的淋漓尽致!





