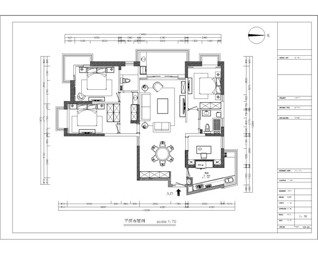
154㎡四居新古典风格郑和国际广场
发布时间:
2014年11月07日
小区:郑和国际广场 面积:154㎡ 户型:四居 风格:新古典风格
设计说明
本案,为了满足全面的功能是小美式风格,厨房和客卧有稍微的改动,整体色调蓝色,简单的壁纸,实木线条的应用,配以后的家居,把小美式的风格演绎的淋漓尽致!
客厅


卫生间

卧室

餐厅

本案,为了满足全面的功能是小美式风格,厨房和客卧有稍微的改动,整体色调蓝色,简单的壁纸,实木线条的应用,配以后的家居,把小美式的风格演绎的淋漓尽致!




