138㎡三居新中式风格金地格林小镇
发布时间:
2014年11月07日
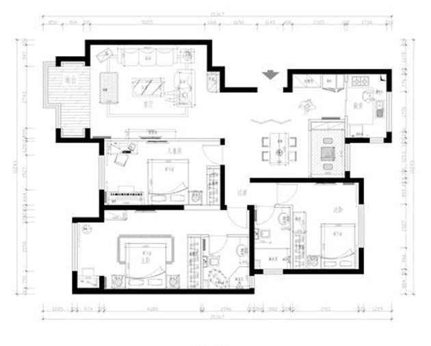
小区:金地格林小镇 面积:138㎡ 户型:三居 风格:新中式风格
设计说明
缺陷说明:
1.门厅位置缺陷,影响了动线,切私密性较差,占用了过道及餐厅面积,格局交错复杂。
2.餐厅格局很不适用,采光不好,受面积影响无法摆放餐边柜。
3.儿童房储物间破坏了整体格局,侧重于储物,而实用性较差。
改造说明:
1. 受风格影响,为了增加私密性,所以在门厅放一个折叠中式屏风,而且不阻碍动线,降低空间交错感。
2餐厅有长度没有宽度,所以在餐厅又增加了一个小小的休闲去,不影响餐厅功能切美观依然保留。
3儿童房的设计重点在于扩大房间面积,给小孩最大的活动空间,所以把储物间拆除,做开放式衣帽柜,增大活动空间。
把中式元素与现代风格的点线面相结合,充分利用空间的实用性。整体风格造型简单,通过壁纸与有色墙漆的合理搭配来展现客户独特的生活品味。
客厅


卧室

餐厅





京公安网备11010502040911