220㎡五居新中式风格美泉纪
发布时间:
2014年11月18日
小区:美泉纪 面积:220㎡ 户型:五居 风格:新中式风格
设计说明
设计说明:本案业主一来就确定了要新中式风格,既要中式的文化底蕴,又要简约的时尚简约感觉。整体运用了中式的局部特征点缀,大部分使用简约时尚风格的造型,目的在于简约繁琐的中式线条,使其达到中式的稳重感和书香气息。
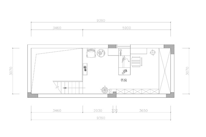
户型图

卧室


客厅


设计说明:本案业主一来就确定了要新中式风格,既要中式的文化底蕴,又要简约的时尚简约感觉。整体运用了中式的局部特征点缀,大部分使用简约时尚风格的造型,目的在于简约繁琐的中式线条,使其达到中式的稳重感和书香气息。




