193㎡四居新古典风格长城半岛城邦
发布时间:
2014年11月19日
小区:长城半岛城邦 面积:193㎡ 户型:四居 风格:新古典风格
设计说明
业主一家三代人居住,由于附属卧室比较小,所以专门用一个房间作为书房。而女主人比较小资,所以在书房外面的阳台还专门做成了榻榻米,供她和闺密享受片刻休闲。而男主人则喜欢拥有个小的吧台区域,闲暇时光可以小饮酒杯,和家人朋友聊聊天。而吧台区域也可以供小朋友玩耍使用。而风格上则选用更为休闲小资的美式小清新风格。
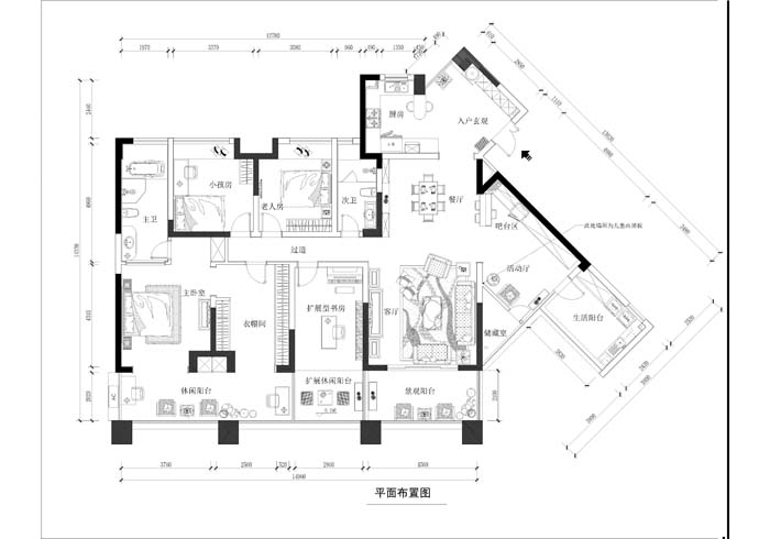
户型图

客厅


卧室

餐厅





京公安网备11010502040911