265㎡别墅新古典风格龙观天下
发布时间:
2014年11月25日
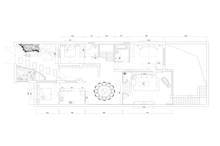
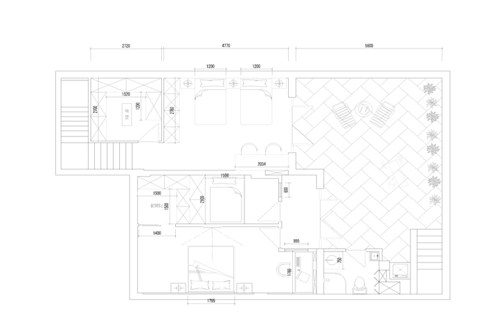
小区:龙观天下 面积:265㎡ 户型:别墅 风格:新古典风格
设计说明
本案的设计以西方古典的美式风格为基础,在材料的应用上比较低调,以实木地板和墙纸为主,结合自然的格调。稳实的色彩,开敞的空间,舒畅的动线,细腻的节点,统一多变的花纹,丰富、华美的灯光设计,都体现着一种格调。重新演绎古朴、怀旧的新思潮。
客厅









楼梯


卧室





京公安网备11010502040911