130㎡四居简欧风格云锦世家
发布时间:
2014年12月01日
小区:云锦世家 面积:130㎡ 户型:四居 风格:简欧风格
设计说明
本案运用了简欧的设计风格。欧洲文化丰富的艺术底蕴,开放、创新的设计思想及其尊贵的姿容,一直以来颇受众人喜爱与追求。新古典风格从简单到繁杂、从整体到局部,精雕细琢,镶花刻金都给人一丝不苟的印象。一方面保留了材质、色彩的大致风格,仍然可以很强烈地感受传统的历史痕迹与浑厚的文化底蕴,同时又摒弃了过于复杂的肌理和装饰,简化了线条。
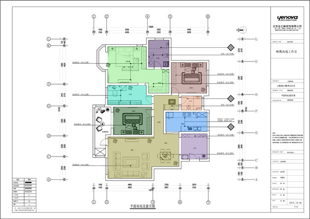
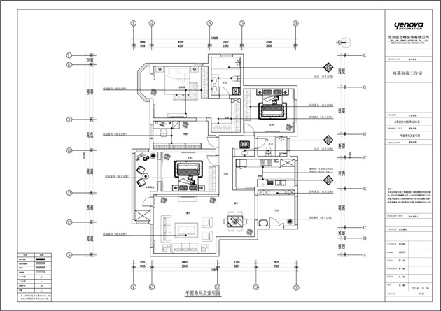
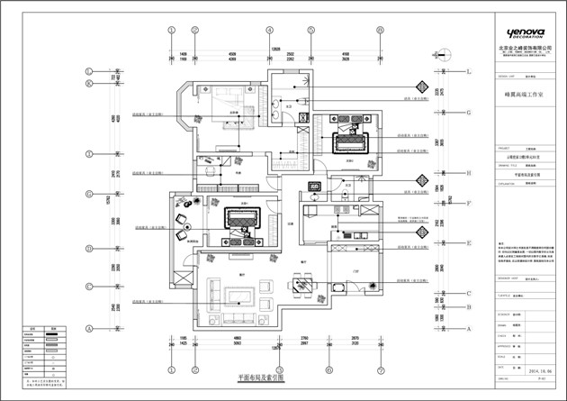
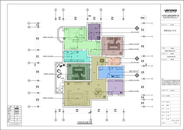
户型图



客厅






餐厅

卧室



户型图







京公安网备11010502040911