260㎡别墅新中式风格花溪地
发布时间:
2014年12月17日
小区:花溪地 面积:260㎡ 户型:别墅 风格:新中式风格
设计说明
踏入舒适的沙发区内休憩,立刻感受贯穿客厅与餐厅之开放式空间的宽敞与气度,ARMANI CASE造型的家具及灯饰与空间相互呼应,加强了其格局层次及空间的相互贯连性。玄关区除了必备的鞋柜及衣帽柜外,柜面材质以墨镜衬托借以增加视觉深度。在入口侧边穿透屏风隐约可见的草书字体,串连着玄关与餐厅的空间感,展现出现代东方的低调内敛,更为玄关制造了生气。
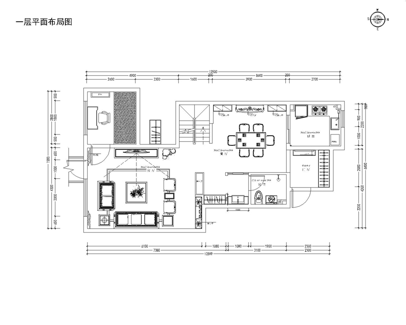
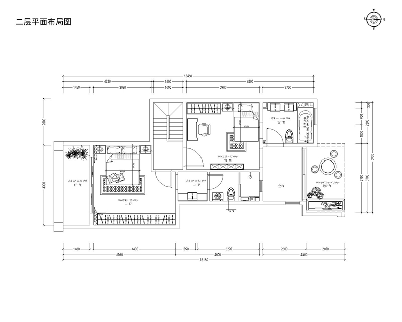
户型图

客厅





餐厅


书房

玄关

休闲区





京公安网备11010502040911