350㎡别墅新中式风格水岸豪庭
发布时间:
2014年12月18日
小区:水岸豪庭 面积:350㎡ 户型:别墅 风格:新中式风格
设计说明
本设计运用了新东方的元素结合了现代风格的弧形设计,使空间连贯流畅,具有变化性。所有的装饰浑然一体,再加上中式云纹、花格等元素,使空间更具有东方的韵味。云纹增加了家居的古典内涵,而花格的木色柔和了线条,使白色不再显得单调乏味,反衬出优雅的云纹,起到了画龙点睛的作用。同时也增强了整个空间的中式意境。白色的纯净加上中式元素形成了让人眼前一亮的新东方风格。
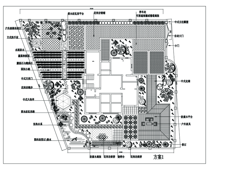
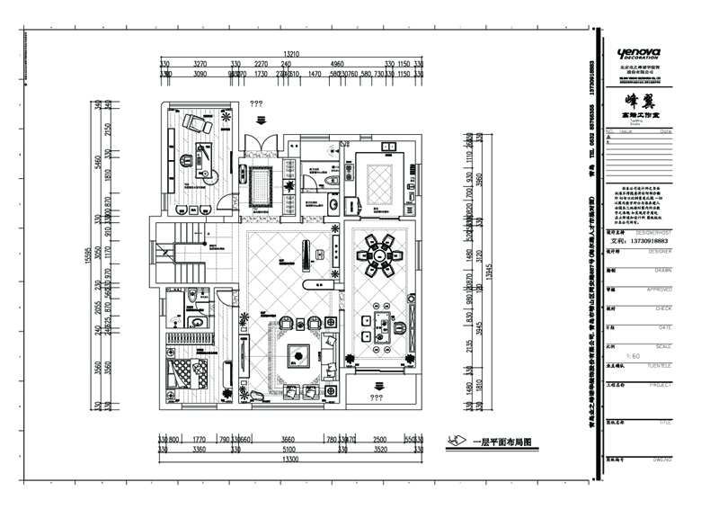
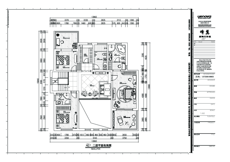
户型图

客厅







玄关

书房

餐厅





京公安网备11010502040911