170㎡四居美式风格悦城
发布时间:
2014年12月18日
小区:悦城 面积:170㎡ 户型:四居 风格:美式风格
设计说明
美式田园风格又称为美式乡村风格,属于自然风格的一支,倡导“回归自然”,田园风格在美学上推崇自然、结合自然,在室内环境中力求表现悠闲、舒畅、自然的田园生活情趣,也常运用天然木、石、藤、竹等材质质朴的纹理。巧于设置室内绿化,创造自然、简朴、高雅的氛围。美国田园风格有:务实、规范、成熟的特点。
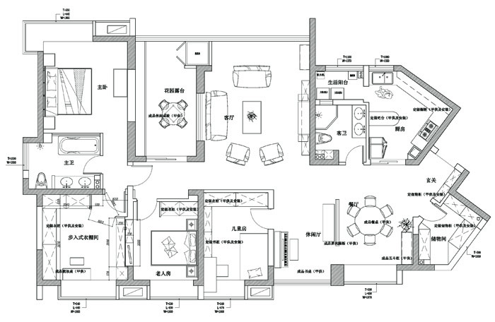
户型图

客厅


卫生间

卧室





京公安网备11010502040911