160㎡三居新古典风格燕岛国际
发布时间:
2014年12月19日
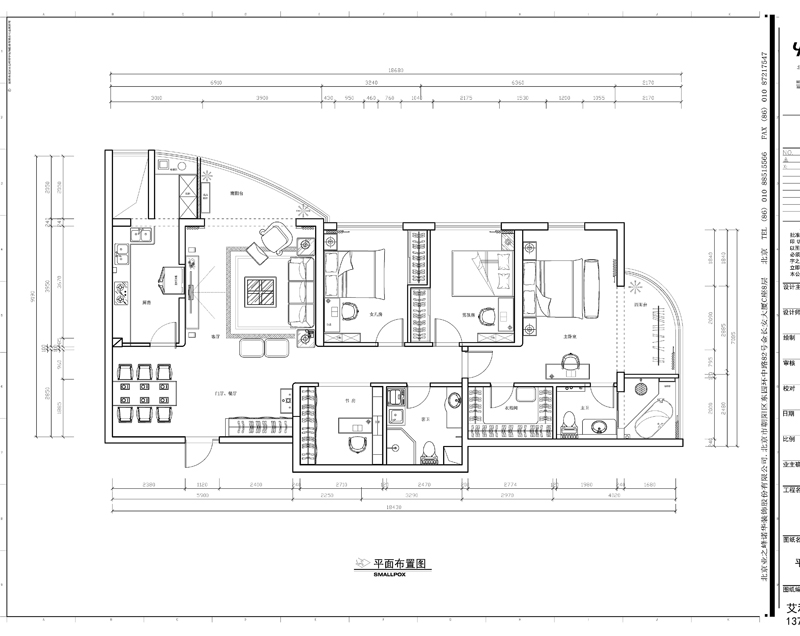
小区:燕岛国际 面积:160㎡ 户型:三居 风格:新古典风格
设计说明
每个人都会有闪亮的奢华之梦,在这套房子中,设计师通过视觉、触觉等来自身体各种感官上的反馈,将梦想演变成为真实的奢华享受。 特别选购的欧式沙发,从风格上定义了空间的古典气质,而与之搭配的水晶材质的透明茶几又拉近了古典与时尚之间的距离。摒弃繁复的欧式线脚所带来的禁锢,会客厅的装饰墙旁的长条车边镜面依次呈直线排列,在顶面镜钢的映射下,从视觉上将空间拉高。
户型图

客厅



卧室


卫生间

厨房

餐厅





京公安网备11010502040911