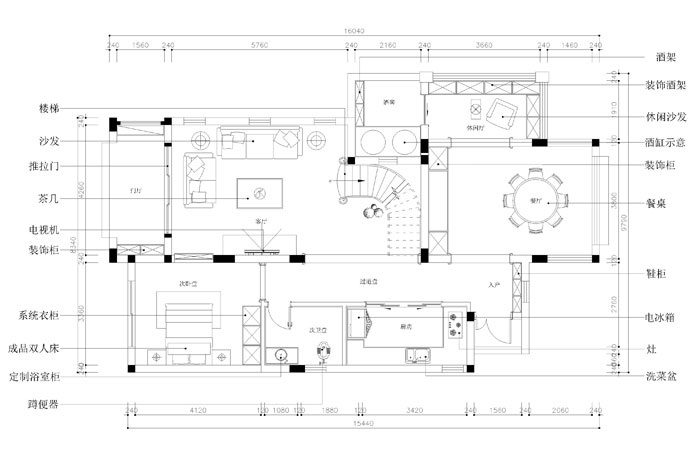
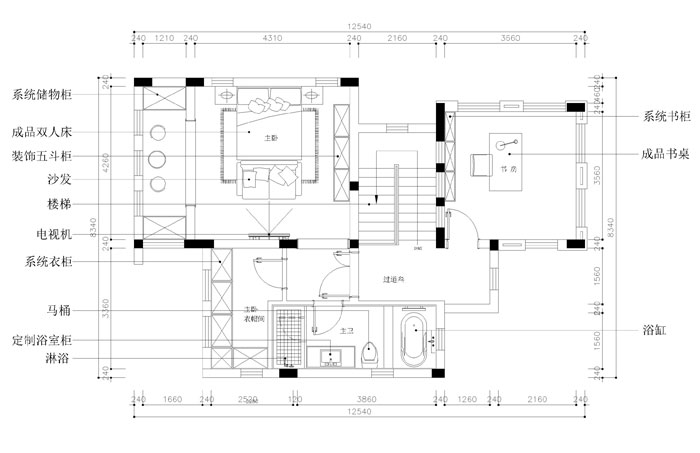
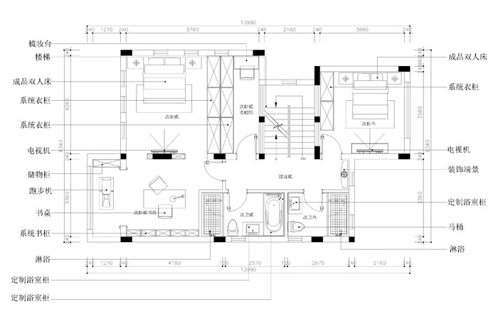
280㎡别墅美式风格中信云栖谷
发布时间:
2014年12月19日
小区:中信云栖谷 面积:280㎡ 户型:别墅 风格:美式风格
设计说明
整个空间以沉稳的木色为主基调,驼色为辅,空间环境雅致、休闲。宁静的装饰线条,时而闪烁耀眼,时而隐藏其型,或灵或透,一切都是最自然的呈现,让空间弥漫舒适的乡村韵味
客厅




卧室


餐厅

整个空间以沉稳的木色为主基调,驼色为辅,空间环境雅致、休闲。宁静的装饰线条,时而闪烁耀眼,时而隐藏其型,或灵或透,一切都是最自然的呈现,让空间弥漫舒适的乡村韵味






