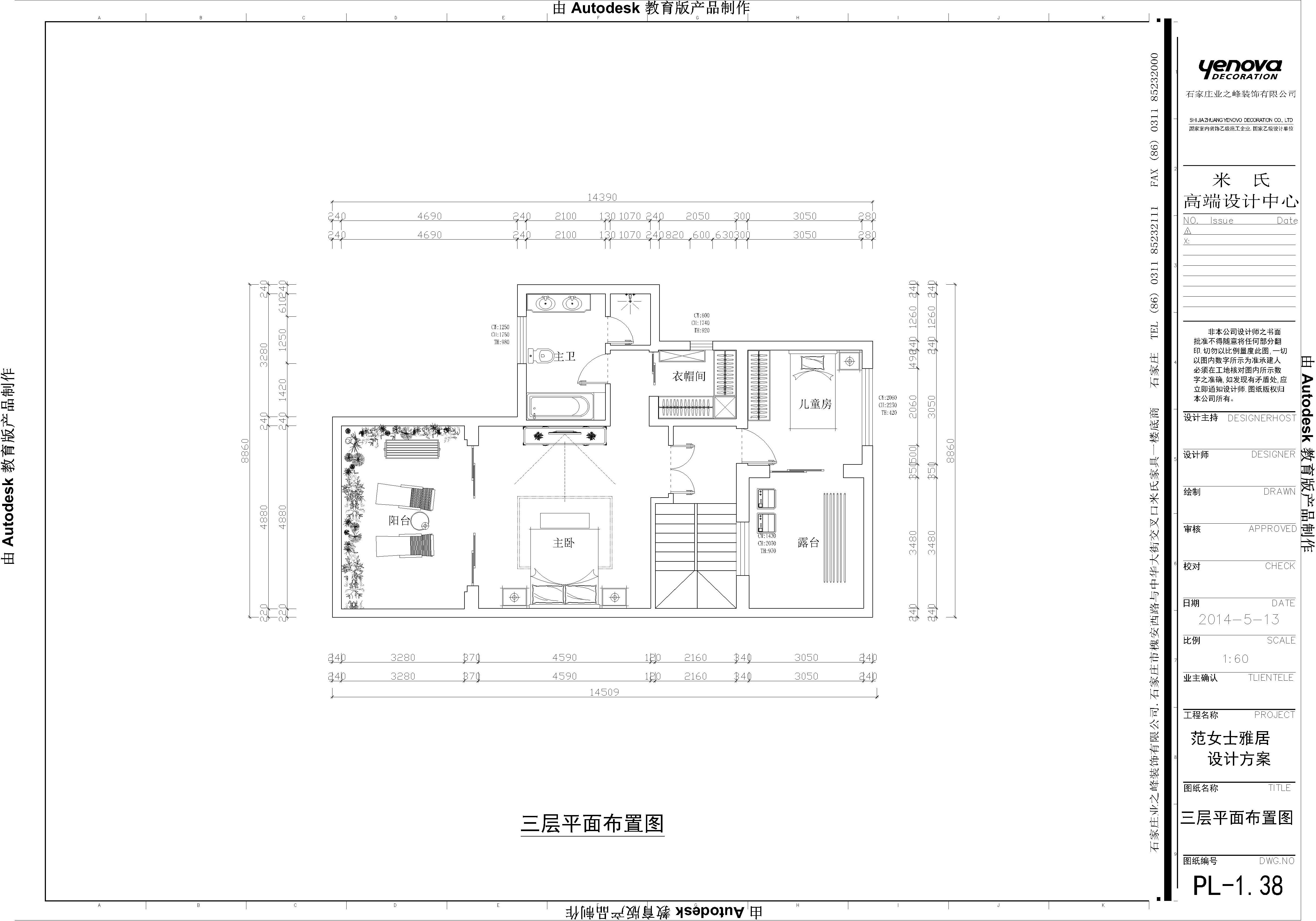
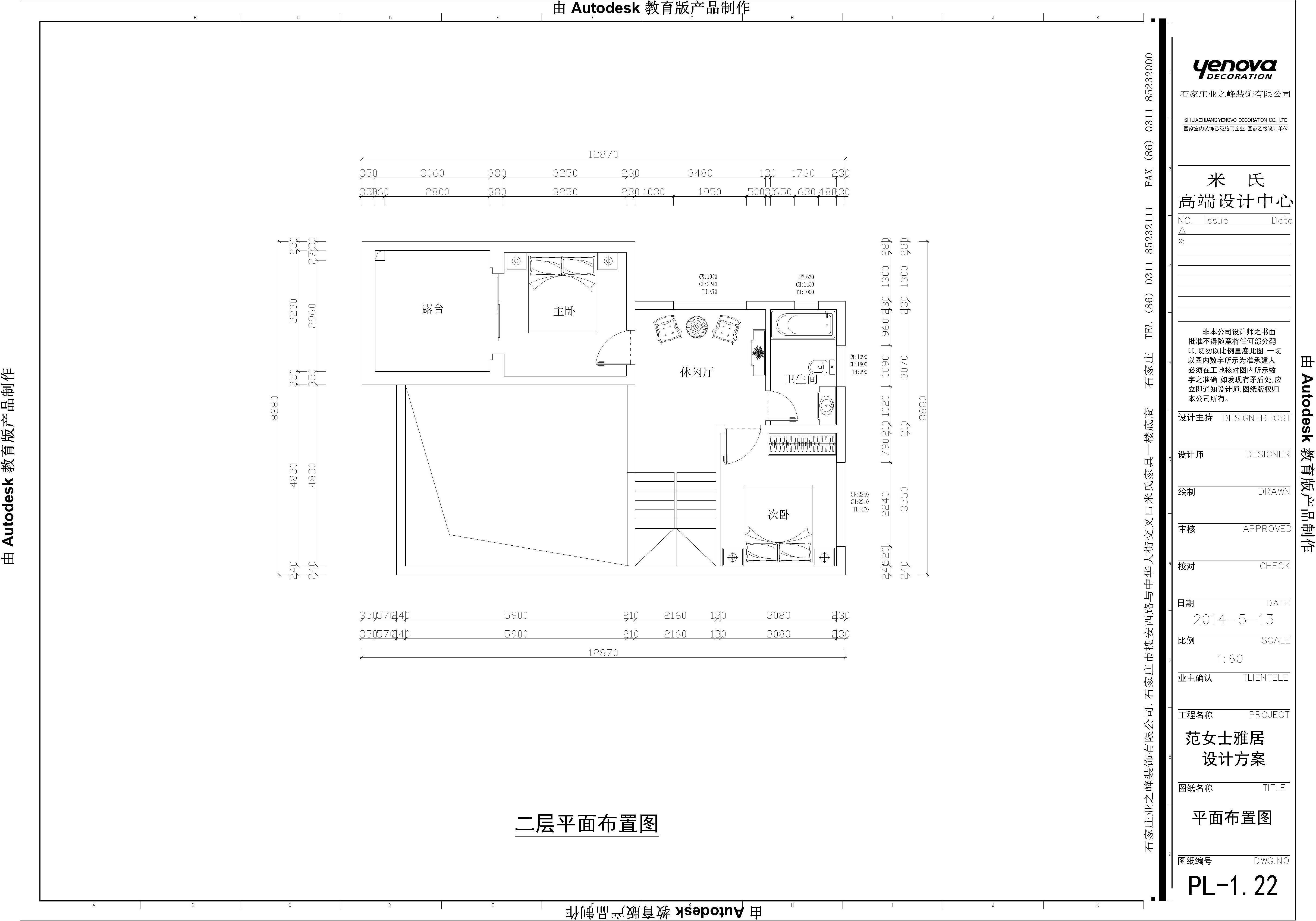
303㎡别墅新古典风格恒大金碧天下
发布时间:
2015年01月23日
小区:恒大金碧天下 面积:303㎡ 户型:别墅 风格:新古典风格
设计说明
本案在客厅空间,镶嵌实木护墙板的整体墙面搭配经典的欧式艺术墙纸、涂有金色漆的罗马装饰柱,金黄色和棕色的配饰衬托出古典家具的高贵及优雅;赋有古典美感的窗栏及地毯、造型古朴的水晶吊灯等等,让整个空间既赋有韵律感又典雅大方。拾级而上的餐厅,整套的欧式家居和灯具,墙面镶嵌的实木护墙板搭配经典的欧式艺术墙纸,餐厅空间在整体的设计上与客厅相配合,让在此用餐者丝毫感觉不到空间的转移。古典蓝的餐桌椅,宽大精美,成为餐厅实木空间中最靓丽的风景线。
客厅




















京公安网备11010502040911